Large 4-bed bungalow with detached double garage, solar panels and extensive parking.
Extended L-shaped living and dining: large entertaining spaces
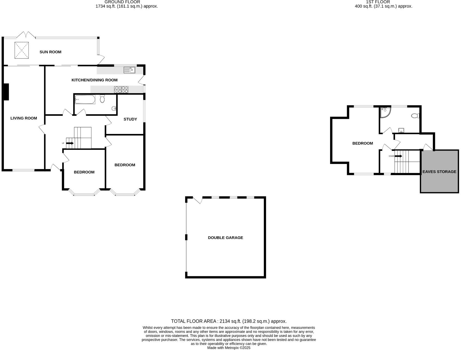
Set within a generous plot on Firgrove Road, this extended four-bedroom semi-detached bungalow offers flexible living across ground and first-floor accommodation. The large L-shaped living room, extended kitchen/dining area and long conservatory create sweeping entertaining and family spaces opening onto a south-facing garden. Practical benefits include a detached double garage with power, fitted solar panels and battery back-up, plus driveway parking for five to six cars.
The layout suits multigenerational families or those wanting principal bedrooms separated from family space: three ground-floor bedrooms and a first-floor master with shower room and dressing room. The property is spacious throughout (about 2,134 sq ft) and benefits from double glazing, mains gas central heating and an EPC B rating, which helps running costs.
Buyers should note the construction dates (late 1960s–1970s) and assumed cavity walls without added insulation — some thermal upgrades may be beneficial. Council Tax Band E is above average for the area. Overall, this freehold home blends roomy, adaptable accommodation with strong parking and energy extras, making it a good option for families or downsizers seeking space and long-term potential.
3 bedroom detached bungalow for sale in Wellington Avenue, Whitehill, Hampshire, GU35 — £550,000 • 3 bed • 2 bath • 1374 ft²
3 bedroom semi-detached bungalow for sale in Mill Chase Road, Bordon, Hampshire, GU35 — £315,000 • 3 bed • 1 bath • 1313 ft²
2 bedroom semi-detached bungalow for sale in Washford Lane, Bordon, Hampshire, GU35 — £325,000 • 2 bed • 1 bath • 809 ft²
4 bedroom house for sale in Azalea Avenue, Lindford, GU35 — £615,000 • 4 bed • 2 bath • 1321 ft²
3 bedroom detached bungalow for sale in Forest Road, Whitehill, Hampshire, GU35 — £499,950 • 3 bed • 2 bath • 1542 ft²
2 bedroom detached bungalow for sale in Mill Lane, Bordon, GU35 — £400,000 • 2 bed • 1 bath






























































