**Standout Features:**
- Spacious detached bungalow with three bedrooms and two bathrooms
- Open-plan living spaces, including a large living room and conservatory
- Extended garage/workshop with parking for up to 8 vehicles
- Desirable location backing onto the Deadwater Valley protected woodland
- Great potential for extension or updating
**Details:**
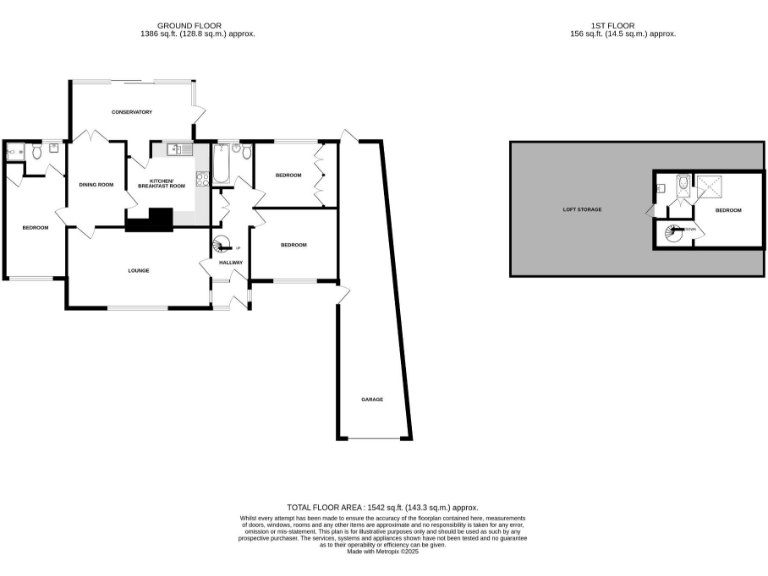
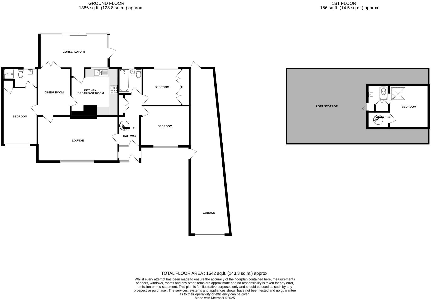
Discover this charming three-bedroom, two-bathroom detached bungalow situated in a peaceful, non-estate setting just a stone's throw from the picturesque Deadwater Valley. With a generous layout spanning 1,542 square feet, this home boasts a welcoming entrance hall, a cozy living room with a stone fireplace, and a delightful dining area leading into a bright conservatory, perfect for soaking in garden views. The master suite features an ensuite shower room, while two additional bedrooms provide ample space for family or guests.
Outdoor enthusiasts will appreciate the expansive rear garden, ideal for relaxation and entertaining, alongside an attached extended garage/workshop that promises endless possibilities. Parking is abundant with space for up to eight vehicles, making it a practical choice for families or hobbyists.
While the property is well-maintained, some areas may benefit from updates or personal touches, allowing you to tailor it to your preferences. Set in a very low-crime, affluent community, this home promises comfort and security, making it an excellent choice for family living.
Don’t miss this opportunity to own a charming bungalow with incredible potential in the beautiful countryside—schedule a viewing today!
3 bedroom detached bungalow for sale in Wellington Avenue, Whitehill, Hampshire, GU35 — £550,000 • 3 bed • 2 bath • 1374 ft²
3 bedroom detached bungalow for sale in Windsor Road, Lindford, Hampshire, GU35 — £640,000 • 3 bed • 2 bath • 1306 ft²
3 bedroom bungalow for sale in Tunbridge Crescent, Liphook, GU30 — £550,000 • 3 bed • 1 bath • 1092 ft²
4 bedroom semi-detached bungalow for sale in Firgrove Road, Whitehill, Hampshire, GU35 — £465,000 • 4 bed • 1 bath • 2134 ft²
2 bedroom semi-detached bungalow for sale in Washford Lane, Bordon, Hampshire, GU35 — £325,000 • 2 bed • 1 bath • 809 ft²
3 bedroom bungalow for sale in Firgrove Road, Whitehill, GU35 — £650,000 • 3 bed • 1 bath • 1127 ft²






















































































































