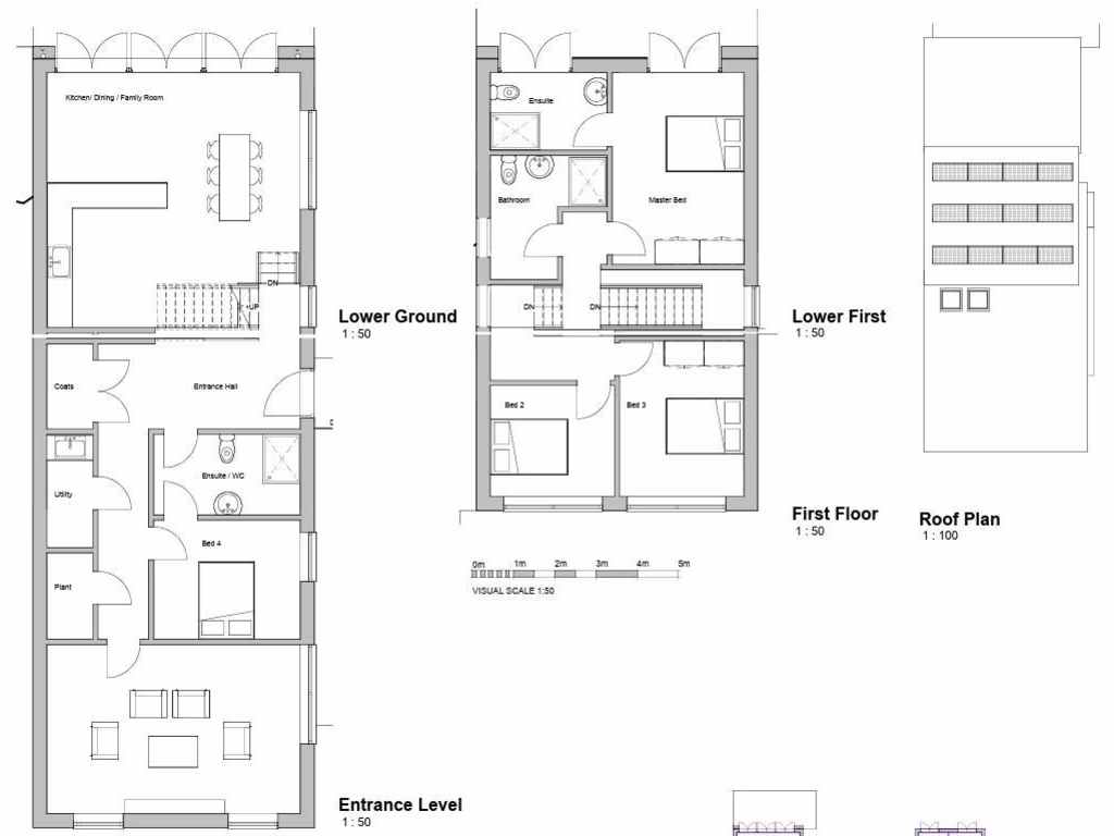
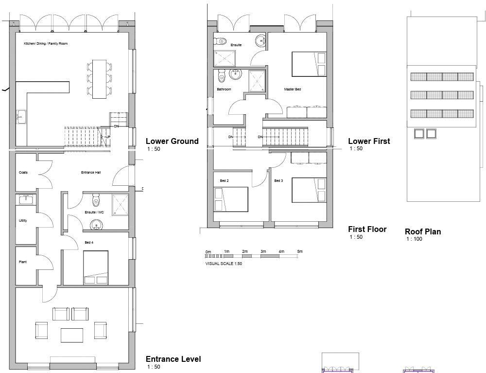
**Standout Features:**
- Planning permission for a four-bedroom, two-bathroom detached house.
- Located in a desirable, non-estate area of Waterlooville.
- Ideal for a modern SIP (Structural Insulated Panel) build offering energy efficiency.
- Flexible, open-plan living designed on a split-level layout.
- Large plot size with the potential for a spacious garden and garage parking.
- Excellent mobile and fast broadband connectivity.
**Property Summary:**
Seize the opportunity to create your dream home with granted planning permission for a four-bedroom detached house in the popular Waterlooville area. This building plot, set in a comfortable suburban location, allows for modern open-plan living in a contemporary design that emphasizes efficiency and style. With a spacious layout and generous garden potential, it’s perfect for families seeking a personalized living space or investors looking to develop an appealing rental property.
This area prides itself on being affluent, with low crime rates and a strong sense of community, enhanced by access to highly-rated local schools for families. Enjoy the convenience of nearby amenities, including restaurants, shops, and healthcare facilities, ensuring a balanced and vibrant lifestyle. Don’t miss out on this unique chance to build something special in a sought-after location—act now to explore the potential that awaits!
Land for sale in Durley Avenue, Waterlooville, PO8 — £230,000 • 1 bed • 1 bath • 462 ft²
Plot for sale in Billett Avenue, Waterlooville, PO7 — £450,000 • 4 bed • 2 bath • 2540 ft²
Land for sale in Mays Lane, Stubbington, PO14 — £255,000 • 1 bed • 1 bath
Plot for sale in Newgate Lane, Fareham, PO14 — £300,000 • 1 bed • 1 bath • 1583 ft²
Plot for sale in Willow Drive, Soberton, Southampton, Hampshire, SO32 — £450,000 • 1 bed • 1 bath • 3750 ft²
Land for sale in South Plot, Land to the East of Darnel Road, Hambledon Road, Waterlooville, PO7 7FQ, PO7 — POA • 1 bed • 1 bath • 2524 ft²


































