Last serviced building plot on a prestigious Waterlooville avenue, ready for bespoke build.
Freehold large plot with detailed planning permission (2021) for 2,540 sq.ft
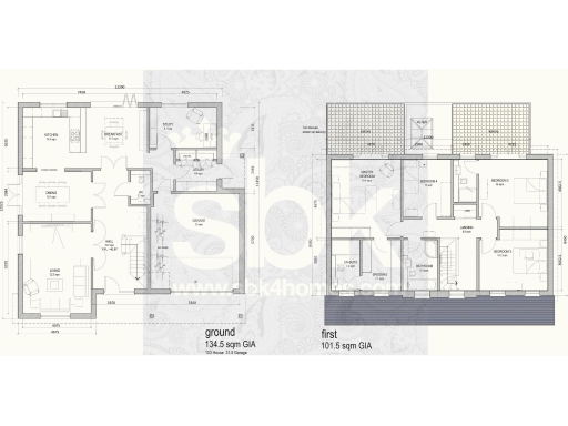
This large freehold plot on Billett Avenue comes with detailed planning permission (granted 2021) for a 2,540 sq.ft detached family home in a New England style. The scheme delivers four generous bedrooms—two with balconies and dressing areas—an expansive kitchen/breakfast room with bi-fold doors, plus separate living, dining, study and utility spaces. Mains services are already connected and the private access road is laid, reducing early infrastructure work.
The plot is the final development opportunity on this prestigious street, surrounded by individually built family homes in a very affluent neighbourhood. The layout allows internal changes to suit a self-builder or small developer looking to create a bespoke family residence or a desirable investment property. The design includes garage parking and a private garden.
Buyers should note this is a building project: the plot requires full construction to complete the home to habitable standard. Broadband speeds are currently slow in the area, and local crime statistics are average. For families, good local primary and secondary schools rated Good are nearby, and utilities and road access are already in place to simplify delivery of the build.
Plot for sale in Summerhill Road, Waterlooville, PO8 — £245,000 • 4 bed • 2 bath
Land for sale in Durley Avenue, Waterlooville, PO8 — £230,000 • 1 bed • 1 bath • 462 ft²
Detached house for sale in Site South of Wilsom Farmhouse, 60 Wilsom Road, Alton, Hampshire, GU34 — £400,000 • 1 bed • 1 bath
Detached house for sale in Northern Plot North Of Wilsom Farmhouse, 60 Wilsom Road, Alton, Hampshire, GU34 — £375,000 • 1 bed • 1 bath
Plot for sale in Newgate Lane, Fareham, PO14 — £300,000 • 1 bed • 1 bath • 1583 ft²
Land for sale in Mays Lane, Stubbington, PO14 — £255,000 • 1 bed • 1 bath










































