Perfect for equestrian pursuits and small‑scale country living.
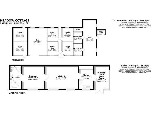
One bedroom converted barn, approximately 614 sq ft interior size
Meadow Cottage is a one‑bedroom converted barn set in about 3.5 acres, with paddocks, a small ménage and a substantial stable block. The plot includes stables, workshop and storage, plus ample parking and a private gravel forecourt — features that make the site particularly well suited to equestrian use or small‑scale hobby farming.
The cottage itself is a compact, characterful conversion (circa pre‑1900 solid brick) with exposed brickwork, double glazing, solar panels and an air‑source heat pump. Internally the layout is simple: garden/boot room, kitchen, lounge, double bedroom and a bathroom with separate shower. Broadband and mobile services are available and the property sits in a very low crime, low flood‑risk rural location with good road links to Telford, Wolverhampton and the M54.
Practical points are clear: the house totals approximately 614 sq ft and has only one bedroom, so it will suit a couple, downsizer or equestrian occupier rather than a larger family. The building’s solid brick construction appears to lack modern cavity insulation, so buyers should expect potential improvement work to thermal performance. Drainage is to a shared septic tank and the site uses both renewable systems and an oil boiler, so understanding existing services and running costs is important.
Overall this is a rare rural plot pairing a compact, characterful home with substantial outbuildings and grazing land. It offers immediate equestrian potential and room to adapt or enhance the dwelling, but purchasers should budget for insulation, possible building upgrades and management of a shared septic system.
4 bedroom barn conversion for sale in Barn 1, Knowle Bank Farm Knowles Bank, Shifnal, TF11 9PG, TF11 — £599,950 • 4 bed • 3 bath • 2319 ft²
4 bedroom barn conversion for sale in High Clear Barn, Beaconhill Lane, Monkhopton, Bridgnorth, WV16 — £765,000 • 4 bed • 2 bath • 1790 ft²
3 bedroom barn conversion for sale in The Gatehouse, Burlington Court, Burlington, TF11 8BW, TF11 — £539,000 • 3 bed • 2 bath • 1212 ft²
5 bedroom barn conversion for sale in Sowbath Barn, Moreton Mill, Shawbury, Shrewsbury, Shropshire, SY4 4ES, SY4 — £1,075,000 • 5 bed • 5 bath • 3960 ft²
5 bedroom barn conversion for sale in Easthope, Much Wenlock, Shropshire, TF13 — £699,950 • 5 bed • 2 bath • 2573 ft²
5 bedroom detached house for sale in Green Lane, Whitgreave, ST18 — £925,000 • 5 bed • 4 bath • 3815 ft²














































