**Standout Features:**
- **Size and Scope:** 268.31 hectares (663 acres) comprising arable, pasture, and diverse mixed-use land.
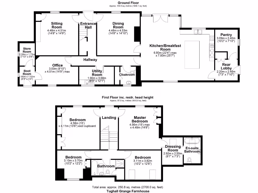
- **Residences:** A substantial 4-bedroom farmhouse, a stone-built bungalow, and two cottages for residential use or rental.
- **Modern Facilities:** Excellent range of modern farm buildings in superb condition, with well-maintained concrete yards.
- **Income Potential:** Established holiday cabins generating additional income, showcasing the property’s multifaceted appeal.
- **Development Opportunities:** Traditional buildings with potential for renovation, subject to planning approval.
Tughall Grange presents an exceptional opportunity for rural living and agricultural investment in the idyllic surroundings of Northumberland. This expansive 663-acre farm boasts a beautifully maintained four-bedroom farmhouse, complemented by a stone bungalow and two inviting cottages, perfectly positioned for family use or rental income. The estate features an impressive array of modern farm buildings, ensuring all needs for both livestock and arable farming are met with functional efficiency.
While the property excels in its agricultural offerings and tranquil environment, the unique potential for development—especially of the traditional structures—invites exploration of future expansion opportunities. The current operational success of the holiday cabins adds a lucrative dimension to this rural estate. Experience serene countryside living, with ample space for recreational pursuits or continued agricultural activity, all while ensuring outstanding future potential. Don’t miss your chance to own this expansive property—an exceptional investment for those seeking comfort, security, and opportunity in the Northumbrian landscape.
 4 bedroom farm house for sale in Eglingham, Alnwick, Northumberland, NE66 — £9,500,000 • 4 bed • 1 bath • 2820 ft²
 4 bedroom farm house for sale in Eglingham, Alnwick, Northumberland, NE66 — £9,500,000 • 4 bed • 1 bath • 2820 ft² Farm land for sale in Land at Ulgham Grange, Morpeth, NE61 3AX, NE61 — £525,000 • 1 bed • 1 bath
 Farm land for sale in Land at Ulgham Grange, Morpeth, NE61 3AX, NE61 — £525,000 • 1 bed • 1 bath Land for sale in Throphill Farm - Lot 1, Throphill, Morpeth, Northumberland, NE61 — £695,000 • 1 bed • 1 bath
 Land for sale in Throphill Farm - Lot 1, Throphill, Morpeth, Northumberland, NE61 — £695,000 • 1 bed • 1 bath 9 bedroom country house for sale in Tuggal Hall, Chathill, Northumberland, NE67 — £1,995,000 • 9 bed • 5 bath • 750 ft²
 9 bedroom country house for sale in Tuggal Hall, Chathill, Northumberland, NE67 — £1,995,000 • 9 bed • 5 bath • 750 ft² Land for sale in Throphill Farm, Throphill, Morpeth, Northumberland, NE61 — £1,695,000 • 1 bed • 1 bath
 Land for sale in Throphill Farm, Throphill, Morpeth, Northumberland, NE61 — £1,695,000 • 1 bed • 1 bath 5 bedroom detached house for sale in Lot 1 - West Ord Farm (excluding plot) , Berwick-Upon-Tweed, Northumberland, TD15 — £6,500,000 • 5 bed • 2 bath • 10993 ft²
 5 bedroom detached house for sale in Lot 1 - West Ord Farm (excluding plot) , Berwick-Upon-Tweed, Northumberland, TD15 — £6,500,000 • 5 bed • 2 bath • 10993 ft²






























































































