Auction sale for hands-on buyers seeking a low-cost renovation project near schools and the coast.
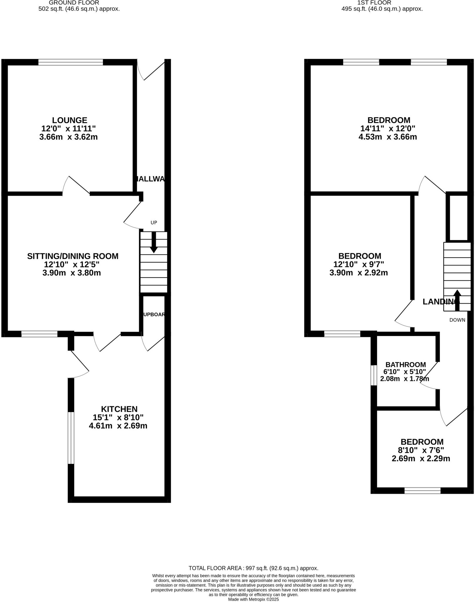
Three bedrooms and two reception rooms across two storeys
Set over two storeys, this Edwardian mid-terrace offers three bedrooms, two reception rooms and a separate kitchen — a solid shell for refurbishment. The property is chain-free and sold freehold via the Modern Method of Auction, making it a quick purchase route for cash buyers or investors prepared for auction terms.
The house requires significant updating: visible damp and mould in the dining room, plaster damage, and a general need for modernisation throughout. Walls are solid brick with no assumed insulation; buyers should budget for thermal upgrades, rewiring checks, and possible heating/system work despite an existing gas boiler and radiators.
Externally there are small front and rear yards with scope for low-cost landscaping or storage; there is no off-street parking. The location is practical — close to shops, several primary schools and the coast — but the wider neighbourhood shows higher crime levels and very high local deprivation, which will affect long-term rental and resale values.
This lot suits investors or experienced DIY buyers seeking a low-entry auction purchase to refurbish for let or resale. Important auction conditions apply: subject to reserve, buyer pays reservation fee and other auction administration fees — inspect the Buyer Information Pack and factor auction costs into any offer.
3 bedroom detached house for sale in Little Coates Road, Grimsby, DN34 — £155,000 • 3 bed • 1 bath • 971 ft²
2 bedroom semi-detached house for sale in Dudley Street, Grimsby, N.E. Lincs, DN31 2AW, DN31 — £90,000 • 2 bed • 1 bath • 958 ft²
3 bedroom terraced house for sale in Legsby Avenue, Grimsby, N.E.Lincolnshire, DN32 — £110,000 • 3 bed • 1 bath • 1110 ft²
3 bedroom end of terrace house for sale in Legsby Avenue, Grimsby, Lincolnshire, DN32 — £40,000 • 3 bed • 1 bath • 1046 ft²
3 bedroom terraced house for sale in Gilbey Road, Grimsby, DN31 — £45,000 • 3 bed • 1 bath • 1057 ft²
3 bedroom terraced house for sale in Carnforth Crescent, Grimsby, Lincoln, Lincolnshire, DN34 5HY, DN34 — £60,000 • 3 bed • 1 bath • 915 ft²










































































