Chain-free auction opportunity with period features and refurbishment potential.
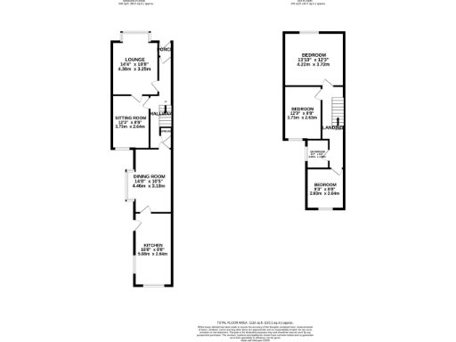
Three bedrooms with three reception rooms and high ceilings
A roomy three-bedroom Victorian mid-terrace offering genuine character and clear improvement potential. Chain-free and auction-bound, this freehold home gives buyers a straightforward purchase route in DN32, with classic bay windows, fireplaces and high ceilings that create bright, period rooms. The layout includes three reception rooms for flexible living and a modern kitchen with integrated appliances already in place.
Practical positives include a private front and rear yard, mains gas central heating, very low flood risk and a very low council tax band. The property is mid-terrace of solid brick construction (c.1900–1929) and extends to about 1,110 sq ft — a generous footprint for this price point in the area.
Buyers should note material issues plainly: the area records higher crime and is classified as deprived, the walls are likely uninsulated solid brick (typical of the era), and the house will need updating in parts despite the fitted kitchen. EPC rating D and a single bathroom may limit appeal for larger families without renovation. Expect on-street parking and a small plot with limited rear garden space.
This is a clear opportunity for investors or buyers prepared to modernise: scope to improve energy performance, reconfigure rooms, or refurbish cosmetically to add value. Auction sale and chain-free status suit buyers looking for a fast, uncomplicated completion.
3 bedroom terraced house for sale in Heneage Road, Grimsby, DN32 — £39,000 • 3 bed • 1 bath • 997 ft²
3 bedroom terraced house for sale in St Augustine Avenue, Grimsby, DN32 — £150,000 • 3 bed • 1 bath • 1160 ft²
3 bedroom terraced house for sale in David Street, Grimsby, N.E.Lincolnshire, DN32 — £95,000 • 3 bed • 1 bath • 1000 ft²
3 bedroom terraced house for sale in St. Augustine Avenue, Grimsby , DN32 — £137,000 • 3 bed • 1 bath • 996 ft²
3 bedroom terraced house for sale in Castle Street, Grimsby, Lincolnshire, DN32 — £65,000 • 3 bed • 1 bath • 1023 ft²
3 bedroom terraced house for sale in 14 Patrick Street, Grimsby, South Humberside, DN32 0JQ, DN32 — £45,000 • 3 bed • 1 bath • 1012 ft²






















































































