Ready-to-live-in home with garage, large drive and scope to extend.
Two double bedrooms with large principal bedroom (can be split to create third)
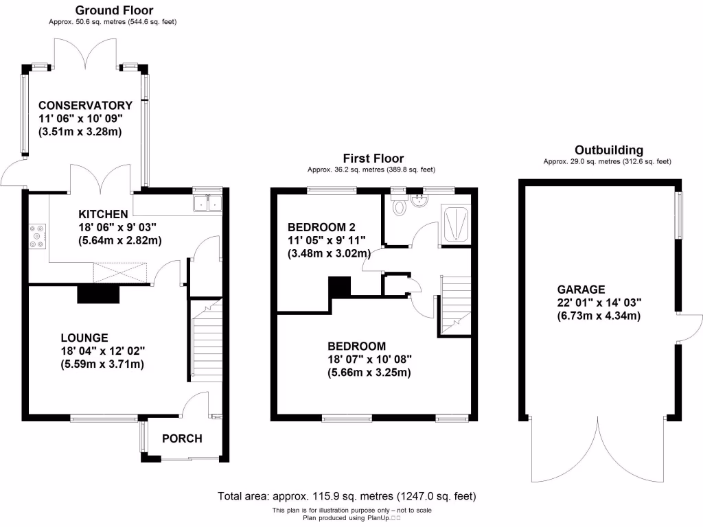
This well-presented two-double-bedroom semi sits on a sizeable plot in a quiet cul-de-sac, with a large block-paved driveway and attached garage. Ground floor living includes a generous lounge, an 18' modern fitted kitchen and a bright conservatory that opens onto a low-maintenance rear garden backing onto Hoblingwell Wood. The accommodation is offered chain-free and ready to occupy.
The first-floor layout currently provides two double bedrooms and a shower room; the master bedroom is large and could be divided to create a third bedroom as has been done locally. There is clear scope to extend to the side, rear and into the loft (subject to planning permission), offering straightforward potential to increase living space and value.
Practical information: the house is freehold, gas‑central heated with double glazing, built in the mid‑20th century, and has a moderate council tax band. Buyers should note there is a single shower room only and the property’s construction era means some buyers may want to check insulation, services and cosmetic details before committing. Overall this is a ready-to-live-in family home with space and good extension potential for growing households.
3 bedroom semi-detached house for sale in Brow Close, Orpington, BR5 — £475,000 • 3 bed • 1 bath • 895 ft²
3 bedroom semi-detached house for sale in Loxwood Close, Orpington, BR5 — £485,000 • 3 bed • 1 bath • 824 ft²
3 bedroom semi-detached house for sale in Rookesley Road, Orpington, BR5 — £490,000 • 3 bed • 1 bath • 1001 ft²
4 bedroom semi-detached house for sale in Mosyer Drive, Orpington, BR5 — £600,000 • 4 bed • 2 bath • 1497 ft²
2 bedroom semi-detached house for sale in Brow Crescent, Orpington, BR5 — £420,000 • 2 bed • 1 bath • 1461 ft²
3 bedroom semi-detached house for sale in Cray Avenue, Orpington, BR5 — £550,000 • 3 bed • 2 bath • 1547 ft²


































































