Three-bed semi with new roof, garage and strong refurbishment upside for investors.
New roof recently fitted, reducing major immediate expenditure
Detached garage plus driveway; off-street parking and storage
Freehold tenure, Council Tax band C — affordable running costs
Requires full internal renovation; dated kitchen and conservatory
Single bathroom only — limited for three-bedroom households
Decent rear garden and good scope for landscaping or extension
Located in a quiet cul‑de‑sac with good schools nearby
Area shows deprivation and challenged local classification; average crime
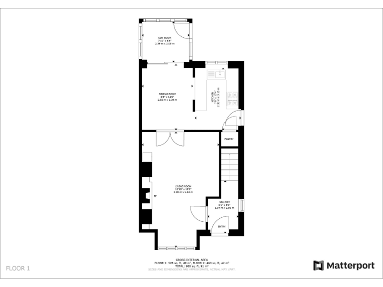
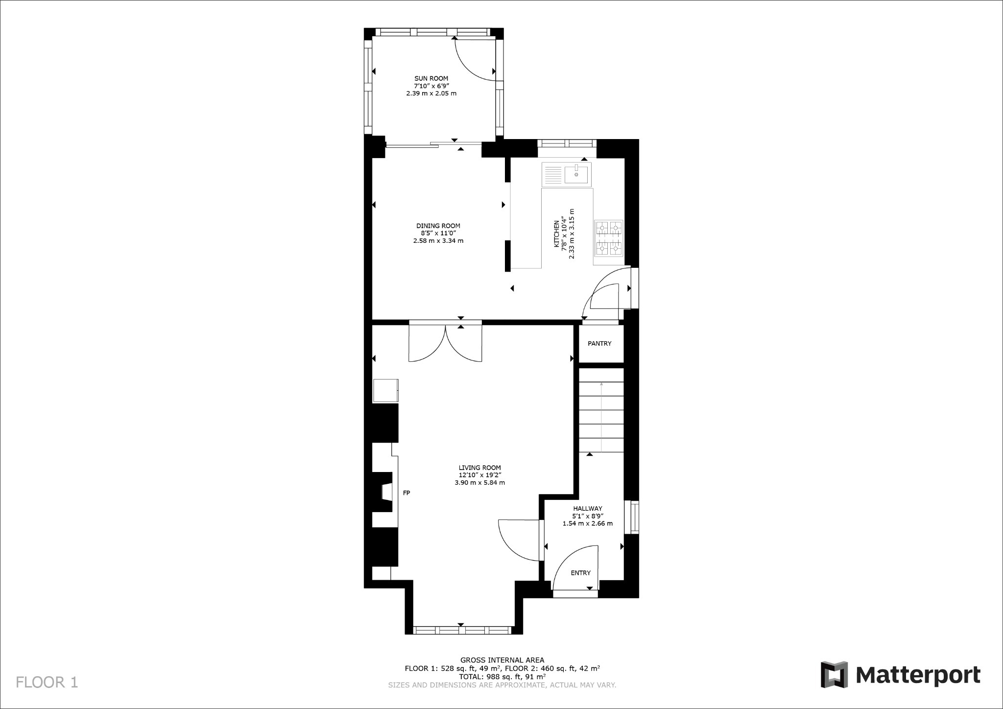
A three-bedroom semi-detached house on a quiet cul‑de‑sac in South Shields offering clear investment upside. The property comes with a new roof, detached garage, driveway and a decent rear garden — practical assets that reduce immediate major-cost risk and increase rental or resale appeal.
Internally the home requires full renovation: dated kitchen and conservatory, worn finishes and a single bathroom. The 948 sq ft layout is straightforward and ready for reconfiguration to modern open-plan living or a rental layout that maximises yield. Double glazing and mains gas heating are already in place.
Location strengths include nearby good and outstanding-rated schools, regular bus links and local amenities. Broadband speeds are fast and mobile signal is excellent — useful for renters or homeowners working from home. Council Tax band C and freehold tenure add predictable running costs.
Buyers should note material drawbacks: the property sits in an area with higher deprivation and a challenged local classification, and crime levels are average for the area. The house needs renovation throughout, so budget for new interiors, likely redecoration, fixtures and possible modernisation of services despite the new roof.
For an investor or hands-on buyer this is a clear “value-add” opportunity: cosmetic and layout work could create a comfortable family home or produce strong rental returns once refurbished.
3 bedroom semi-detached house for sale in East Avenue, South Shields, NE34 — £125,000 • 3 bed • 1 bath • 764 ft²
3 bedroom detached house for sale in South Shields, Tyne and Wear, NE34 — £229,950 • 3 bed • 1 bath
3 bedroom semi-detached house for sale in Harton Lane, South Shields, Tyne and Wear, NE34 0PW, NE34 — £244,995 • 3 bed • 1 bath • 1058 ft²
3 bedroom semi-detached house for sale in Luffness Drive, South Shields, Tyne and Wear, NE34 8AJ, NE34 — £250,000 • 3 bed • 2 bath • 883 ft²
3 bedroom terraced house for sale in Gerald Street, South Shields, Tyne and Wear, NE34 8RG, NE34 — £119,995 • 3 bed • 1 bath • 916 ft²
3 bedroom semi-detached house for sale in Harton House Road, South Shields, Tyne And Wear, NE34 6DZ, NE34 — £199,995 • 3 bed • 1 bath • 1061 ft²






















































































