Three-bedroom terraced house with driveway and large plot — needs renovation..
Three spacious bedrooms with loft access from main bedroom
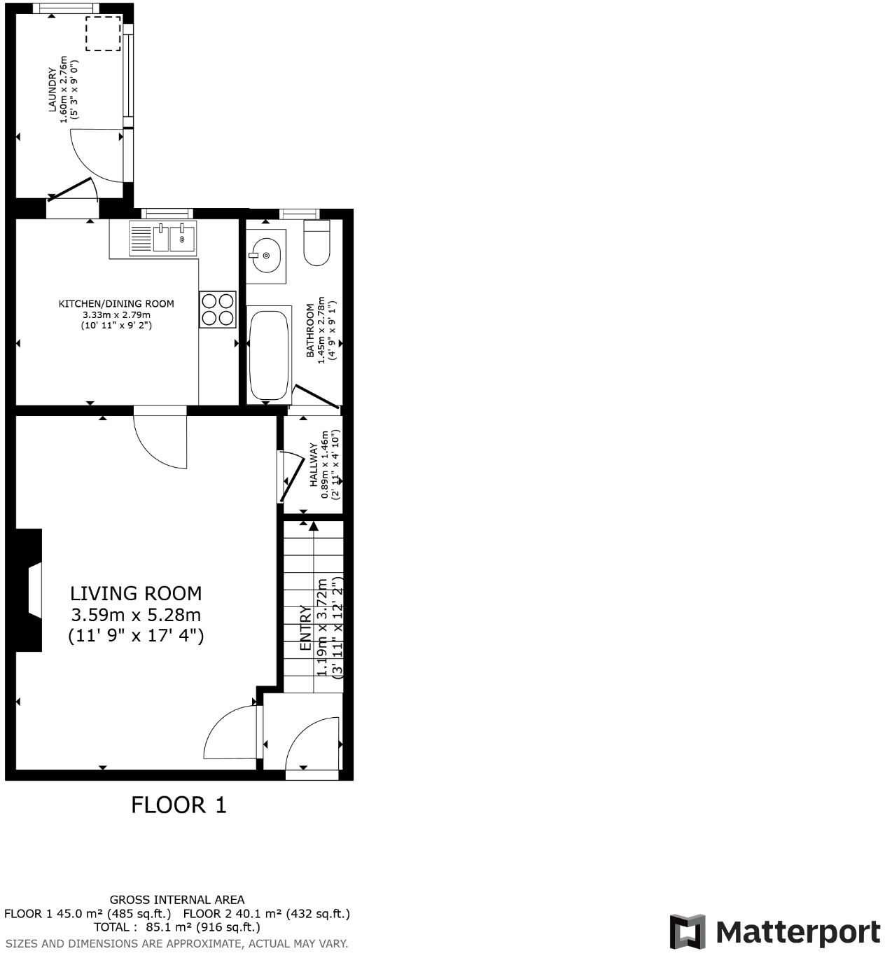
This three-bedroom mid-terrace on Gerald Street offers generous living space and clear scope for improvement. With an ample living room, kitchen with dining space, rear utility extension and loft access from the main bedroom, the layout suits families or buyers seeking a renovation project.
Externally the house sits on a very large plot with a long front garden, driveway for off-street parking and a rear yard with side access and shed. The property is freehold, has double glazing, mains gas central heating and no flood risk — practical benefits for long-term ownership.
Important considerations: the home needs renovation and modernisation throughout; décor and fixtures are dated. The surrounding area is classified as very deprived with above-average crime rates and very slow broadband speeds. These local factors will affect resale and rental potential and should be weighed by buyers or investors.
For the right purchaser this property represents value: affordable price, low council tax, good mobile signal, nearby schools rated Good to Outstanding, and straightforward access to bus routes and the A19. It’s a sensible buy for someone prepared to refurbish and add value through improvement works.
3 bedroom house for sale in Whiteleas Way, South Shields, NE34 — £175,000 • 3 bed • 1 bath • 861 ft²
3 bedroom semi-detached house for sale in Felton Avenue, South Shields, NE34 — £210,000 • 3 bed • 1 bath • 958 ft²
3 bedroom semi-detached house for sale in East Avenue, South Shields, NE34 — £125,000 • 3 bed • 1 bath • 764 ft²
3 bedroom end of terrace house for sale in Moreland Road, South Shields, NE34 — £125,000 • 3 bed • 1 bath • 855 ft²
4 bedroom detached house for sale in Gerald Street, South Shields, NE34 — £255,000 • 4 bed • 2 bath • 1149 ft²
3 bedroom terraced house for sale in Wallsend Road, North Shields, NE29 — £164,950 • 3 bed • 1 bath • 937 ft²






















































































