Family-focused property with large garden and scope to modernise.
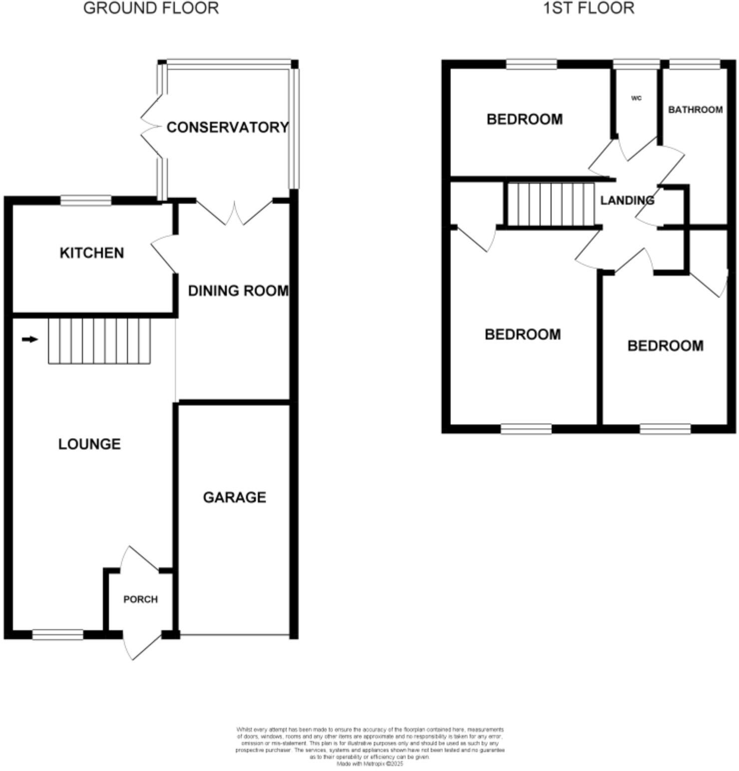
Detached three-bedroom house with conservatory and two reception rooms
Generous rear lawn and patio, large plot for family use
Driveway parking plus single garage for storage or parking
Kitchen functional but dated — ideal for modernisation
Single principal bathroom plus separate ground-floor WC
Freehold tenure; council tax band C, affordable running costs
EPC rating D — energy improvements recommended
Located in a low-crime area with fast broadband and excellent signal
Set on a quiet South Shields street, this three-bedroom detached home offers space and practical family living. The house has two reception rooms, a conservatory overlooking the rear garden and a single garage with driveway parking — good for cars and outdoor storage.
The kitchen provides functional storage and appliances but shows scope for modernisation to suit contemporary tastes. Upstairs are two double bedrooms and a single, plus a family bathroom and separate WC; the layout works well for families or a home office setup.
Outside, the rear lawn and patio create a generous private garden for children and summer entertaining. The property is freehold, in a low-crime area with fast broadband and excellent mobile signal; several good primary and secondary schools are within easy reach.
Important practical points: the EPC rating is D and some updating is likely needed to maximise energy efficiency and resale value. The wider area is classified as relatively deprived, which may influence long-term investment prospects. Overall, the house presents sensible space and immediate usability with potential to increase value through targeted refurbishment.
3 bedroom semi-detached house for sale in South Shields, Tyne and Wear, NE34 — £131,500 • 3 bed • 1 bath
3 bedroom semi-detached house for sale in Luffness Drive, South Shields, Tyne and Wear, NE34 8AJ, NE34 — £250,000 • 3 bed • 2 bath • 883 ft²
3 bedroom end of terrace house for sale in Westcliffe Way, South Shields, NE34 — £200,000 • 3 bed • 1 bath • 827 ft²
3 bedroom semi-detached house for sale in High Meadow, South Shields, NE34 — £244,995 • 3 bed • 2 bath • 1208 ft²
3 bedroom semi-detached house for sale in East Avenue, South Shields, NE34 — £125,000 • 3 bed • 1 bath • 764 ft²
4 bedroom semi-detached house for sale in Harton Lane, South Shields, Tyne and Wear, NE34 0PW, NE34 — £259,995 • 4 bed • 1 bath • 1083 ft²










































































