Two-bedroom Victorian terrace in Clarendon Park ideal for first-time buyers or buy-to-let near Queens Road.
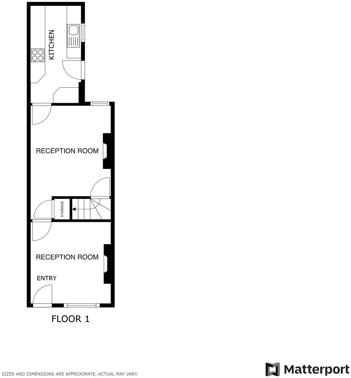
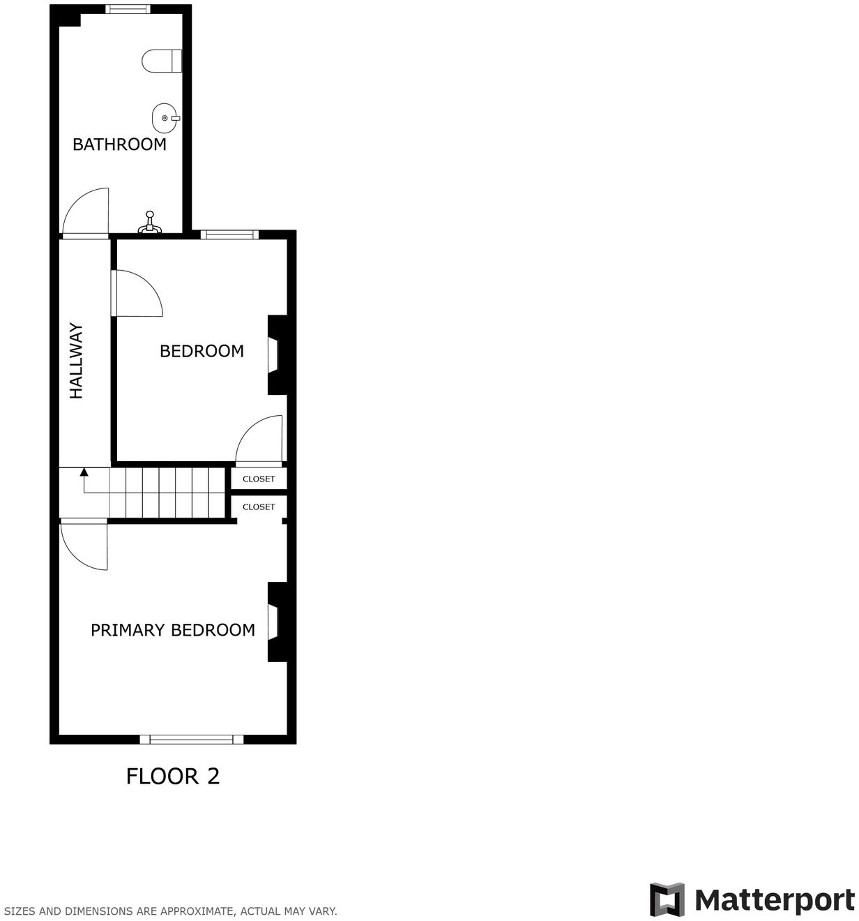
Two double bedrooms and two reception rooms
Contemporary fitted kitchen with integrated appliances
Modern shower room; move-in ready condition
Freehold mid-terrace Victorian property, built 1900–1929
Small rear garden and limited external space
Solid brick walls likely without cavity insulation
EPC D — potential for energy-efficiency improvements
Close to Queen’s Road, university, hospitals and good schools
Set on a quiet cul-de-sac in Clarendon Park, this two-bedroom Victorian terrace offers a compact, well-maintained home with ready-to-use modern kitchen and shower room. Two reception rooms provide flexible living or dining space, while double glazing and gas central heating keep running costs reasonable. The property is freehold with a small rear garden — practical for first-time buyers or landlords seeking a low-maintenance city-base.
The location is a clear strength: close to Queen’s Road shops, cafés and amenities, with easy access to the University of Leicester, hospitals and good local schools. Transport links are strong and the immediate area is popular with students and professionals, supporting rental demand. Council tax is described as cheap and broadband and mobile signals are both good.
Buyers should note the house is a traditional solid-brick build (circa 1900–1929) and likely lacks cavity wall insulation. The EPC is D and the plot is small, so there is limited scope for major extension without planning. While the interior is in generally good order, longer-term improvements (wall insulation, potential heating upgrades) could improve energy performance and running costs.
For first-time purchasers this property offers an accessible entry to Clarendon Park living with immediate usability and scope to add value by addressing insulation and energy-efficiency. For investors it presents straightforward buy-to-let potential in a popular rental neighbourhood, though factor in typical Victorian maintenance and the EPC rating when assessing yields.
2 bedroom terraced house for sale in Clarendon Park Road, Clarendon Park, Leicester, LE2 — £245,000 • 2 bed • 1 bath • 786 ft²
2 bedroom terraced house for sale in Avenue Road Extension, Clarendon Park, Leicester, LE2 — £220,000 • 2 bed • 1 bath • 689 ft²
2 bedroom terraced house for sale in St. Leonards Road, Clarendon Park, LE2 — £242,000 • 2 bed • 2 bath • 850 ft²
2 bedroom terraced house for sale in Lytton Road, Clarendon Park, Leicester, LE2 — £200,000 • 2 bed • 1 bath • 969 ft²
2 bedroom terraced house for sale in St. Leonards Road, Clarendon Park, Leicester, LE2 — £220,000 • 2 bed • 1 bath • 781 ft²
2 bedroom terraced house for sale in Adderley Road, Clarendon Park, Leicester, LE2 — £270,000 • 2 bed • 1 bath • 1001 ft²














































