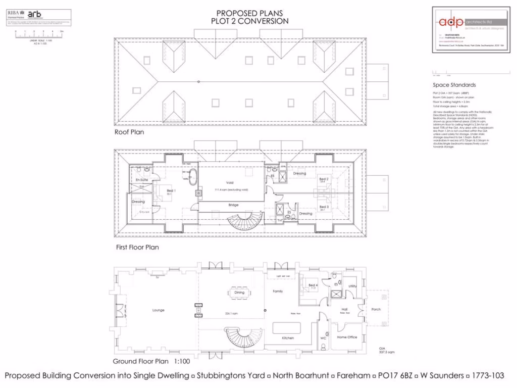
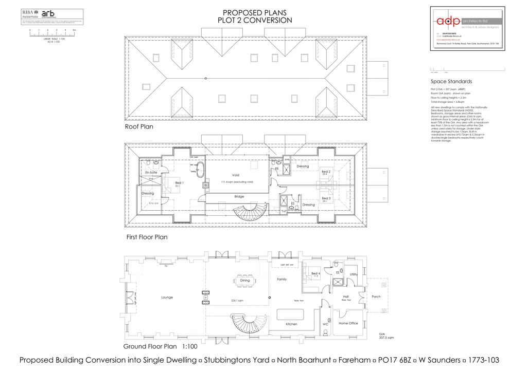
**Standout Features:**
- Unique conversion opportunity with planning consent for change of use
- Spacious two-storey building totaling 3,633 sq. ft.
- Located in the serene village of North Boarhunt, surrounded by countryside views
- Features a modern architectural style with wooden cladding and brickwork
- Ample outdoor area and mature vegetation for potential landscaping
- Good accessibility to nearby amenities and quality schools
This eye-catching property, 'The Barn,' represents a rare conversion opportunity in the charming village of North Boarhunt. With planning consent for a change of use, this expansive two-storey structure offers 3,633 sq. ft. of potential, ideal for those envisioning a spacious family home or a professional working space. The property showcases modern architectural elements such as large windows and a combination of wooden cladding and brickwork, enhancing its aesthetic appeal.
Enjoy magnificent countryside views right from your doorstep, alongside a manageable outdoor area adorned with mature vegetation—perfect for future landscaping or personal touches. While it presents an exciting renovation possibility, prospective buyers should note that some maintenance will be required to realize its full potential. The property is conveniently located within walking distance to a parish community center and just a short cycle from playgrounds and woodland areas. Secure your own slice of North Boarhunt living; opportunities like this are not available for long!
Barn for sale in Trampers Lane, North Boarhunt, PO17 — £950,000 • 1 bed • 1 bath • 3600 ft²
Office for sale in Office , Meadow Way, Trampers Lane, North Boarhunt, Fareham, Hampshire, PO17 6BZ, PO17 — £350,000 • 1 bed • 1 bath • 2515 ft²
Land for sale in Selsey Road, Sidlesham, PO20 — £500,000 • 2 bed • 2 bath
5 bedroom detached house for sale in Trampers Lane, North Boarhunt, Fareham, PO17 — £1,250,000 • 5 bed • 3 bath • 3500 ft²
Land for sale in Plot 4, Meadow Way, North Boarhunt, Hampshire, PO17 6BZ, PO17 — £400,000 • 1 bed • 1 bath • 3150 ft²
Plot for sale in Ham Road, Sidlesham, PO20 — £875,000 • 4 bed • 2 bath • 4015 ft²






