Compact commuter-ready apartment close to station and town centre.
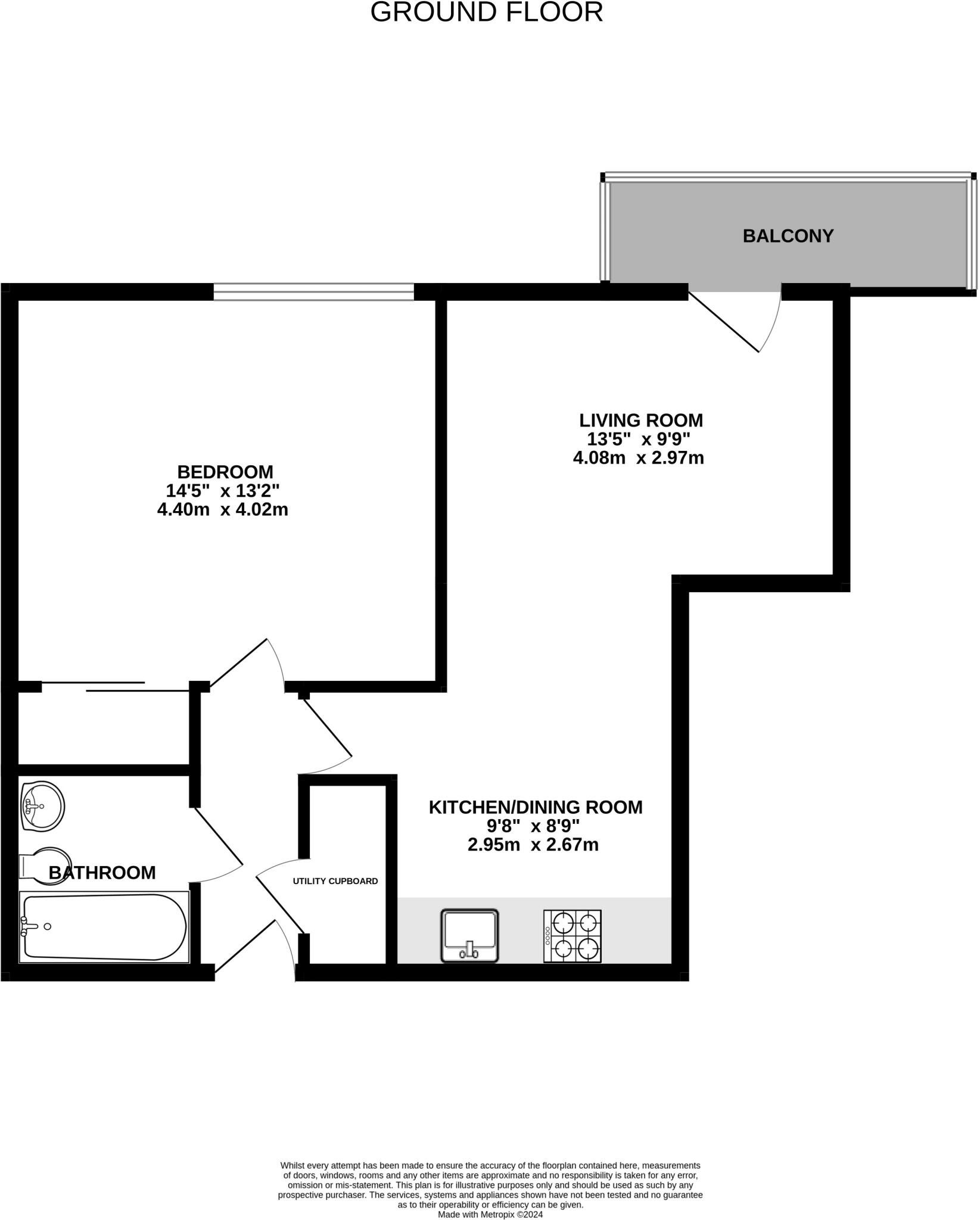
Fifth-floor one-bedroom with balcony and city views
Open-plan living with modern fitted kitchen and bathroom
Allocated underground parking bay in secure gated development
Approx. 406 sq ft — compact living, suited to one or two people
EPC B (84) — energy efficient but electric room heaters installed
Leasehold: ~120 years remaining; service charge £1,316.34 pa
Ground rent £230 pa; check lease details with solicitor
Estimated rent around £1,200 pcm — potential for investors
A bright one-bedroom fifth-floor apartment in a gated development, designed for easy commuting and low-maintenance living. The open-plan living area flows to a balcony with city views; the modern kitchen and bathroom are well presented and ready to use. Allocated underground parking and well-kept communal gardens add convenience and curb appeal.
Practical running costs include an EPC B (84) and an electric heating system using room heaters; this keeps installation simple but may raise running costs compared with gas central heating. The flat is compact at about 406 sq ft, best suited to a single occupant or couple rather than a family needing lots of space.
Leasehold details are straightforward: around 120 years remaining, annual service charge £1,316.34 and ground rent £230. The property sits within easy walking distance of Farnborough town centre and the station with fast services to London, making it suitable for commuters or buy-to-let investors (estimated rent £1,200 pcm).
Buyers should note the local area reports above-average crime and that heating is by electric room heaters. These are factual considerations for budgeting and insurance. Overall this is a tidy, well-located apartment offering low-maintenance city living with clear commuting advantages.
1 bedroom flat for sale in Farnborough Road, Farnborough, Hampshire, GU14 — £250,000 • 1 bed • 1 bath • 371 ft²
1 bedroom flat for sale in Farnborough Road, Farnborough, Hampshire, GU14 — £230,000 • 1 bed • 1 bath • 406 ft²
1 bedroom apartment for sale in Farnborough Road, Farnborough, Hampshire, GU14 — £190,000 • 1 bed • 1 bath • 516 ft²
1 bedroom flat for sale in Farnborough Road, Farnborough, GU14 — £200,000 • 1 bed • 1 bath • 551 ft²
1 bedroom apartment for sale in Farnborough Road, Farnborough, GU14 — £200,000 • 1 bed • 1 bath • 538 ft²
1 bedroom apartment for sale in Coombe Way, Farnborough, Hampshire, GU14 — £190,000 • 1 bed • 1 bath • 350 ft²






























