Characterful two-bed flat with south garden and powered outbuilding, moments from Brockwell Park.
South-facing private garden with direct bedroom access
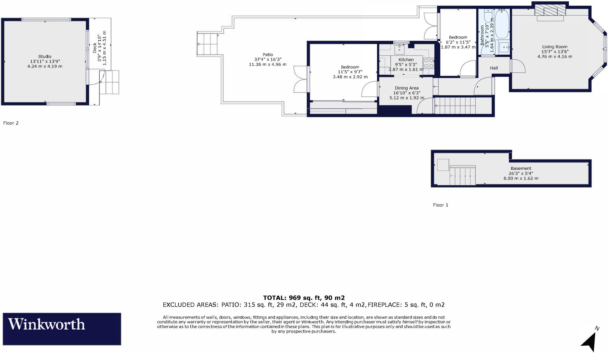
A bright ground-floor period conversion on Romola Road, this two-bedroom flat combines Victorian character with practical modern updates. The reception room’s bay window, wooden floors and feature fireplace create an inviting main living space, while the fitted kitchen and contemporary bathroom keep everyday life straightforward. The principal bedroom opens directly onto a private south-facing garden; the second bedroom also has side-return garden access.
Outside, a large basement offers substantial storage or scope for conversion subject to planning and building regulations, and a fully powered outbuilding works well as a home office or gym. The property benefits from a very long lease (share of freehold) and fast broadband — good for remote working and commuter life — and sits moments from Brockwell Park, local cafés and rail links into central London.
Be upfront about likely maintenance and local context: the building is a solid-brick Victorian mid-terrace (no recorded wall insulation), so expect potential retrofit work to improve thermal efficiency. There is one bathroom and a single boiler-fed heating system. The neighbourhood has above-average crime statistics and pockets of deprivation, which should be weighed against the strong transport connections and local amenities.
This flat will suit first-time buyers or professionals who value period detail, outdoor space and a ready-to-use garden studio, and who are willing to invest in energy upgrades or modest basement works to unlock additional value.
2 bedroom flat for sale in Norwood Road, Herne Hill, London, SE24 — £475,000 • 2 bed • 1 bath • 593 ft²
2 bedroom flat for sale in Herne Hill Road, Herne Hill SE24 — £550,000 • 2 bed • 1 bath • 632 ft²
2 bedroom apartment for sale in Trinity Rise, London, SW2 — £650,000 • 2 bed • 1 bath • 809 ft²
2 bedroom apartment for sale in Dulwich Road, London, SE24 — £525,000 • 2 bed • 1 bath • 629 ft²
3 bedroom apartment for sale in Milkwood Road, London, SE24 — £575,000 • 3 bed • 2 bath • 1093 ft²
2 bedroom apartment for sale in Deronda Road, London, SE24 — £700,000 • 2 bed • 1 bath • 1001 ft²














































