Spacious family layout moments from Herne Hill station and Brockwell Park.
Private rear garden with direct kitchen/dining access
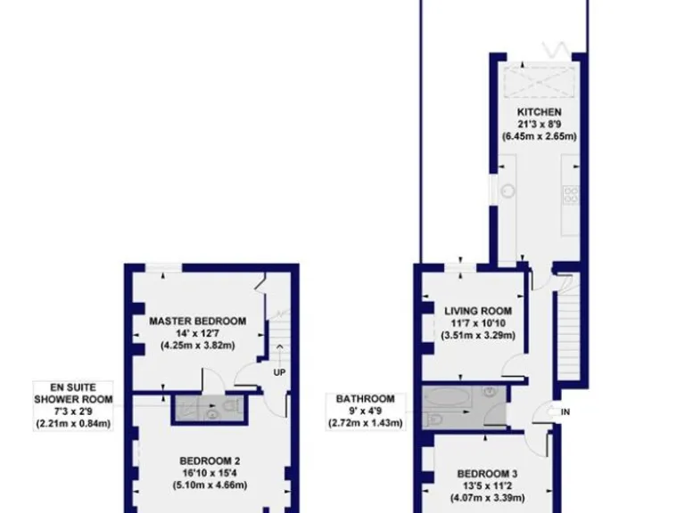
A well-presented three-bedroom period conversion arranged over lower ground and ground floors, blending original features with contemporary fittings. The generous kitchen/dining room opens directly onto a private rear garden, perfect for family meals and outdoor play. The separate living room retains period character, high ceilings and a wood-burning stove to create a warm, relaxed hub.
The principal bedroom is spacious and benefits from an en-suite shower room; two further bedrooms provide flexible accommodation for children, guests or a home office. Fast broadband and excellent mobile signal support working from home. Commuters will appreciate the short walk to Herne Hill station (Thameslink) and easy access to Brockwell Park and local amenities.
Practical points to note: the property sits in a mid-terrace Victorian building with solid brick walls and no known cavity insulation, which may affect heating efficiency and running costs. The flat is sold as a share of freehold with about 98 years remaining on the lease — acceptable but worth checking for long-term mortgage or resale planning. The immediate area records above-average crime levels and higher local deprivation, so viewing the neighbourhood at different times is recommended.
This home will suit families or buyers seeking period character combined with outdoor space and good transport links. It is presented for immediate occupation with scope to improve thermal efficiency and personalise finishes for longer-term value.
2 bedroom apartment for sale in Romola Road, London, SE24 — £650,000 • 2 bed • 1 bath • 969 ft²
2 bedroom apartment for sale in Dulwich Road, London, SE24 — £525,000 • 2 bed • 1 bath • 629 ft²
2 bedroom flat for sale in Herne Hill Road, Herne Hill SE24 — £550,000 • 2 bed • 1 bath • 632 ft²
1 bedroom apartment for sale in Dulwich Road, London, SE24 — £580,000 • 1 bed • 1 bath • 727 ft²
2 bedroom flat for sale in Norwood Road, Herne Hill, London, SE24 — £450,000 • 2 bed • 1 bath • 593 ft²
3 bedroom flat for sale in Wingmore Road, Brixton, SE24 — £725,000 • 3 bed • 1 bath • 950 ft²


















































