Short walk to St Mary Cray station and Nugent Shopping Centre.
Chain-free two double bedroom mid-terrace
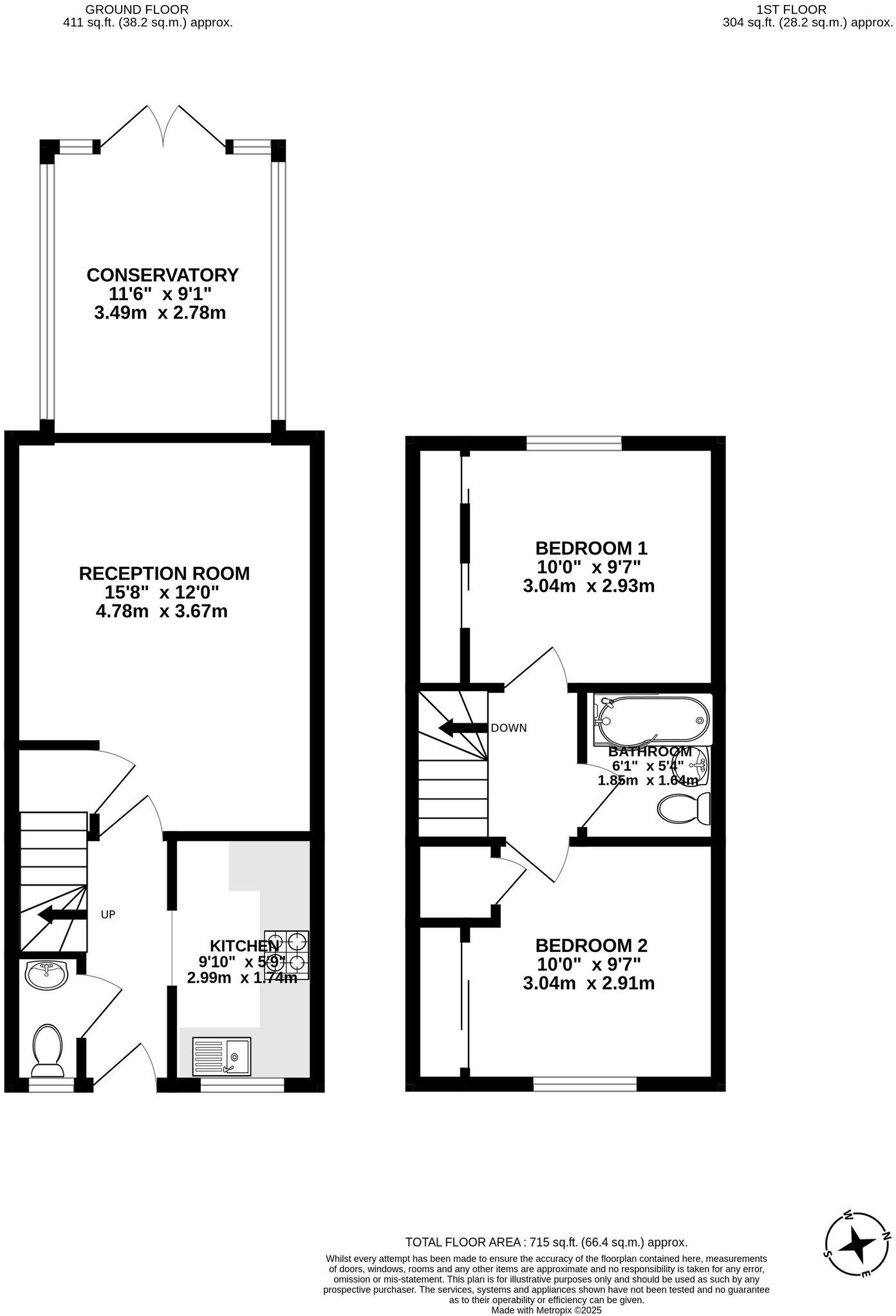
This chain-free two double bedroom mid-terrace sits about 150 feet from St Mary Cray station, making it a practical choice for first-time buyers needing a commuter link. The layout offers a front kitchen, a rear reception leading to a conservatory, and a long c.90ft tiered garden with decking and rear access. Tandem off-street parking for two cars is a useful rarity for the street.
The home is modern-built (late 1990s/early 2000s) with double glazing, gas central heating and an EPC C (78). Interiors are neutrally presented with engineered oak-style floors downstairs and fitted wardrobes in both bedrooms, so move-in is straightforward for many buyers. Nearby amenities include Nugent Shopping Centre, local parks and several primary and secondary schools within a mile.
Notable negatives are factual: the property sits in an area with higher crime and relative deprivation indicators, and the tenure is not specified in the details provided. The conservatory occupies the rear extension position but neighbours have extended further — replacing the conservatory with full extensions could be considered if extra living space is required. Council Tax Band D applies.
Overall this is a practical, commuter-friendly starter home with a long garden and parking, which will suit buyers seeking convenience and straightforward scope for modest improvement or extension subject to planning and tenure confirmation.
3 bedroom terraced house for sale in Millfield Close, Orpington, BR5 — £400,000 • 3 bed • 2 bath • 1156 ft²
2 bedroom end of terrace house for sale in Wellington Road, Orpington, BR5 — £295,000 • 2 bed • 1 bath • 685 ft²
2 bedroom end of terrace house for sale in High Street, St. Mary Cray, Orpington, BR5 — £280,000 • 2 bed • 1 bath • 630 ft²
3 bedroom end of terrace house for sale in Anglesea Road, Orpington, Kent, BR5 4AW, BR5 — £440,000 • 3 bed • 2 bath
2 bedroom semi-detached house for sale in Petersham Gardens, Orpington, Kent, BR5 2QA, BR5 — £399,950 • 2 bed • 1 bath • 912 ft²
2 bedroom semi-detached house for sale in Horsell Road, Orpington, BR5 — £450,000 • 2 bed • 1 bath






































