Chain-free starter with a long garden and direct commuter links.
- Chain free two-bedroom Victorian end-of-terrace
- 50 ft rear garden plus front courtyard outside space
- Two double bedrooms; one offers walk-in-wardrobe space
- Kitchen space requires fitting and modernisation
- EPC D; solid-brick walls likely lack insulation
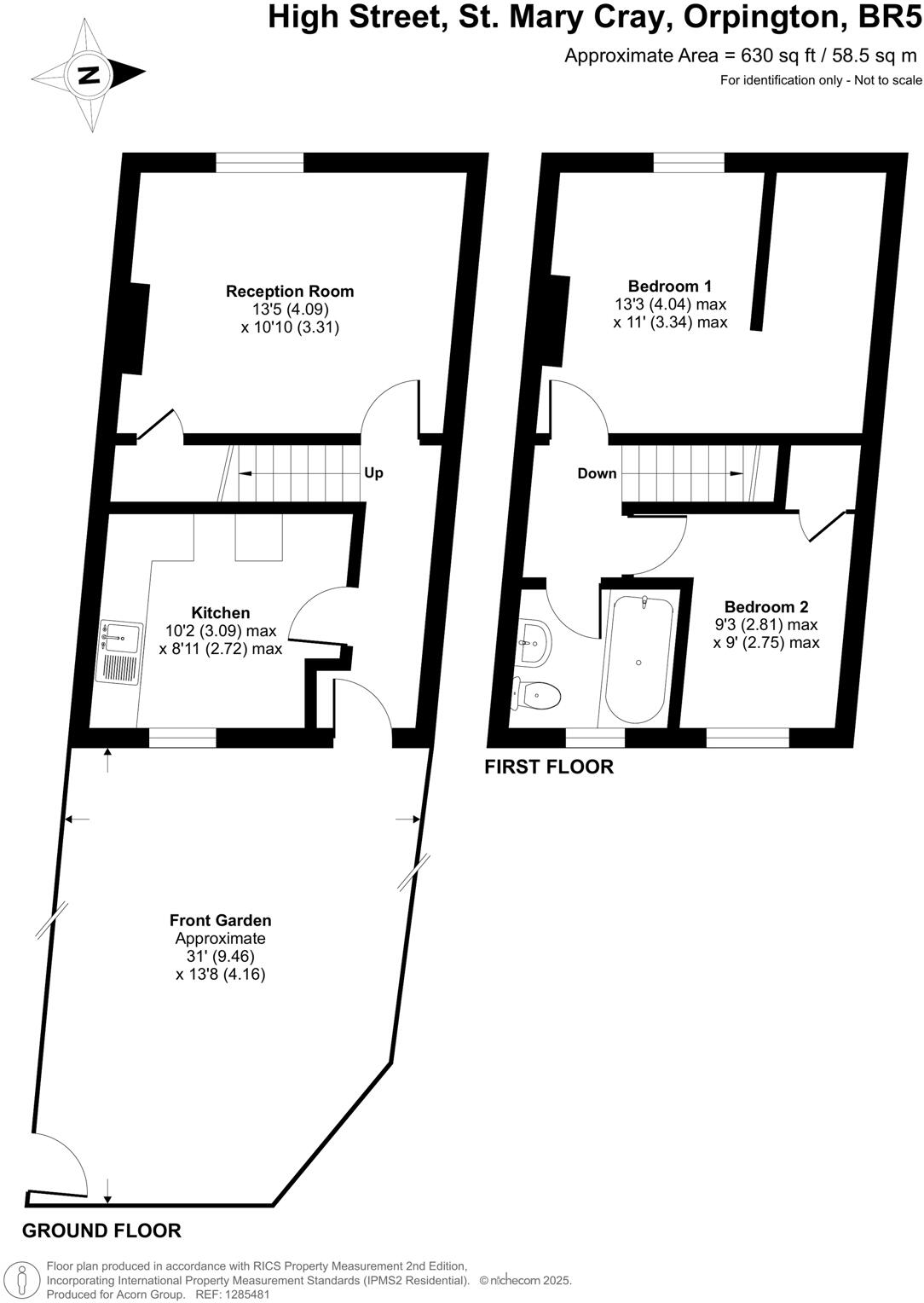
- Approximately 630 sq ft; rooms are modest in size
- 0.9 miles to St Mary Cray station and local shopping
- Local area records above-average crime; area deprived
A chain-free Victorian end-of-terrace offering two double bedrooms and good outside space, well placed for St Mary Cray station and local shops. The house is a straightforward starter with period character, a front courtyard and a 50 ft rear garden — rare for this price bracket.
Internally the layout is practical: hallway, lounge with room for a feature fireplace, separate kitchen space (requires fitting) and a tiled family bathroom upstairs. Accommodation is modest at about 630 sq ft, so rooms feel compact; one bedroom has space for a walk-in wardrobe and both have built-in storage.
There’s clear scope to add value through updating the kitchen, modernising heating controls and improving insulation (solid brick walls likely uninsulated). EPC rating D and double glazing are in place but the property would benefit from energy upgrades. Tenure is freehold with an affordable Council Tax band C.
Location is a strong selling point for first-time buyers: 0.9 miles to St Mary Cray station, Nugent Park shopping nearby, multiple bus routes and several highly regarded schools including an outstanding grammar school. Be aware the local area records above-average crime and some signs of local deprivation, which should be considered when weighing long-term resale or rental potential.
2 bedroom end of terrace house for sale in Wellington Road, Orpington, BR5 — £295,000 • 2 bed • 1 bath • 685 ft²
2 bedroom semi-detached house for sale in Petersham Gardens, Orpington, Kent, BR5 2QA, BR5 — £399,950 • 2 bed • 1 bath • 912 ft²
2 bedroom end of terrace house for sale in Star Lane, Orpington, BR5 — £275,000 • 2 bed • 1 bath • 448 ft²
2 bedroom terraced house for sale in Hearns Road, St Pauls Cray, Kent, BR5 — £340,000 • 2 bed • 1 bath • 905 ft²
2 bedroom end of terrace house for sale in Millwood Road, Orpington, BR5 — £400,000 • 2 bed • 1 bath • 743 ft²
2 bedroom end of terrace house for sale in Star Lane, St Mary Cray, Kent, BR5 — £300,000 • 2 bed • 1 bath • 442 ft²










































































