Chain-free, garden-equipped house with excellent commuter links and refurbishment upside.
Chain free Victorian end-of-terrace, freehold
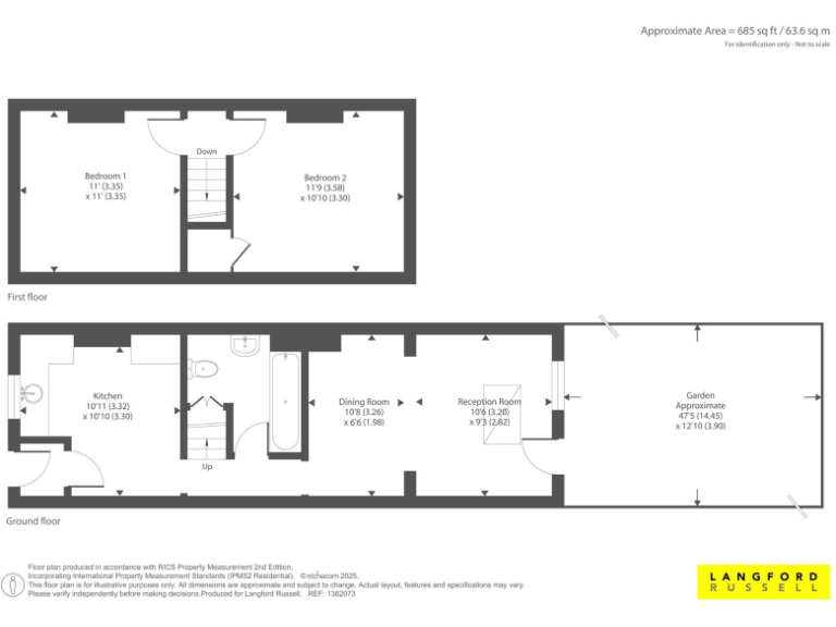
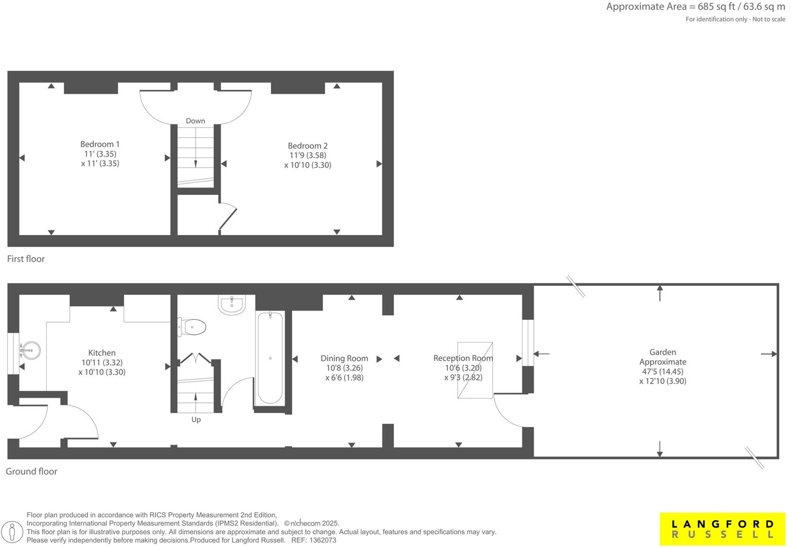
Bright reception room plus separate dining room
47 ft private rear garden, good outdoor entertaining space
Modern bathroom and double glazing already installed
Solid brick walls assumed uninsulated; upgrade likely beneficial
Above-average local crime and higher area deprivation
A chain-free Victorian end-of-terrace offering characterful living and straightforward potential. The ground floor has a bright front reception, separate dining room and a fitted kitchen opening to a private rear garden of approximately 47 ft. Two double bedrooms and a modern bathroom sit on the first floor, with double glazing already installed.
Well placed for commuters, the house is just 0.8 miles from St Mary Cray station with fast links into central London, and local buses to Orpington and Bromley. At about 685 sq ft, the home is an attractive option for first-time buyers or investors seeking rental income in an accessible location. Freehold tenure and an affordable council tax band add to the practical appeal.
Be clear-eyed about the context: the local area is relatively deprived with above-average crime levels, and the property’s solid brick walls are assumed uninsulated. While double glazing and a modern bathroom are in place, the house dates from the early 20th century and may benefit from targeted updates — insulation, heating efficiency improvements or cosmetic refurbishment — to maximise comfort and value.
Overall, this home combines period features and a sizeable garden with strong transport links. It suits buyers wanting a ready-to-live-in base with scope to personalise, or investors looking for a well-located let that can be improved over time.
2 bedroom terraced house for sale in Lower Road, Orpington, BR5 — £300,000 • 2 bed • 1 bath • 650 ft²
2 bedroom terraced house for sale in Hearns Road, St Pauls Cray, Kent, BR5 — £340,000 • 2 bed • 1 bath • 905 ft²
2 bedroom semi-detached house for sale in Hyde Drive, St. Pauls Cray, BR5 — £399,950 • 2 bed • 1 bath • 644 ft²
2 bedroom end of terrace house for sale in Star Lane, Orpington, BR5 — £300,000 • 2 bed • 1 bath • 448 ft²
2 bedroom end of terrace house for sale in Star Lane, St Mary Cray, Kent, BR5 — £300,000 • 2 bed • 1 bath • 442 ft²
3 bedroom terraced house for sale in Millfield Close, Orpington, BR5 — £400,000 • 3 bed • 2 bath • 1156 ft²






















































