**Standout Features:**
- Prime development opportunity with planning permission granted for a contemporary three-bedroom dwelling.
- Large, light-filled accommodation potential of around 2000 sq ft.
- Designated off-street parking and generous garden space.
- Located in tranquil East Lutton, a scenic village in North Yorkshire.
**Property Summary:**
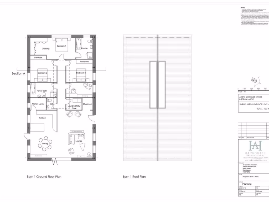
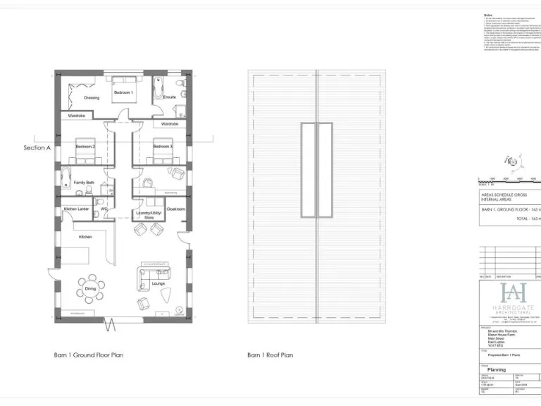
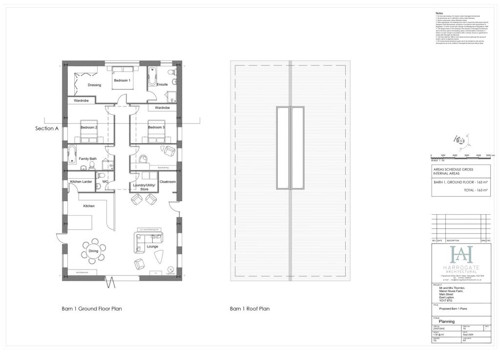
Discover an exceptional opportunity to transform a former agricultural barn into a stunning contemporary home in the serene village of East Lutton. With planning permission recently secured from East Riding Council, this unique property allows for a spacious 2000 sq ft dwelling designed to capture breathtaking rural views and abundant natural light through full-height windows. The planned layout includes a large kitchen dining/living area, a generous principal suite, two additional bedrooms, and a study, all set on a considerable plot of around a third of an acre.
Enjoy off-street parking and the potential to expand your outdoor space, with an additional acre of grassland available via separate negotiation. This peaceful location combines the charm of village life with proximity to Malton's vibrant community and amenities, including award-winning food markets and excellent schools. With low crime rates and a strong sense of community, this property is perfect for families or investors seeking rental potential in an increasingly sought-after area. Don't miss this rare chance to create your dream home—opportunities like this won't last long!
5 bedroom semi-detached house for sale in Manor House Barn, East Lutton, Malton, North Yorkshire, YO17 — £850,000 • 5 bed • 4 bath • 3351 ft²
5 bedroom detached house for sale in East Lutton, Malton, North Yorkshire, YO17 — £895,000 • 5 bed • 2 bath • 4120 ft²
Barn conversion for sale in West Lane, Snainton, Scarborough, YO13 — £180,000 • 1 bed • 1 bath • 2113 ft²
5 bedroom barn conversion for sale in Hostlers Barn, Main Street, Garton-On-The-Wolds, YO25 — £675,000 • 5 bed • 4 bath • 2488 ft²
4 bedroom detached house for sale in East Knapton, Malton, YO17 — £425,000 • 4 bed • 2 bath • 1500 ft²
2 bedroom barn conversion for sale in Church Barns, Fridaythorpe, YO25 — £375,000 • 2 bed • 2 bath • 1539 ft²






























