Heavily extended three-bedroom bungalow on a large plot — chain free and ready to modernise..
Heavily extended detached bungalow with flexible single-storey living
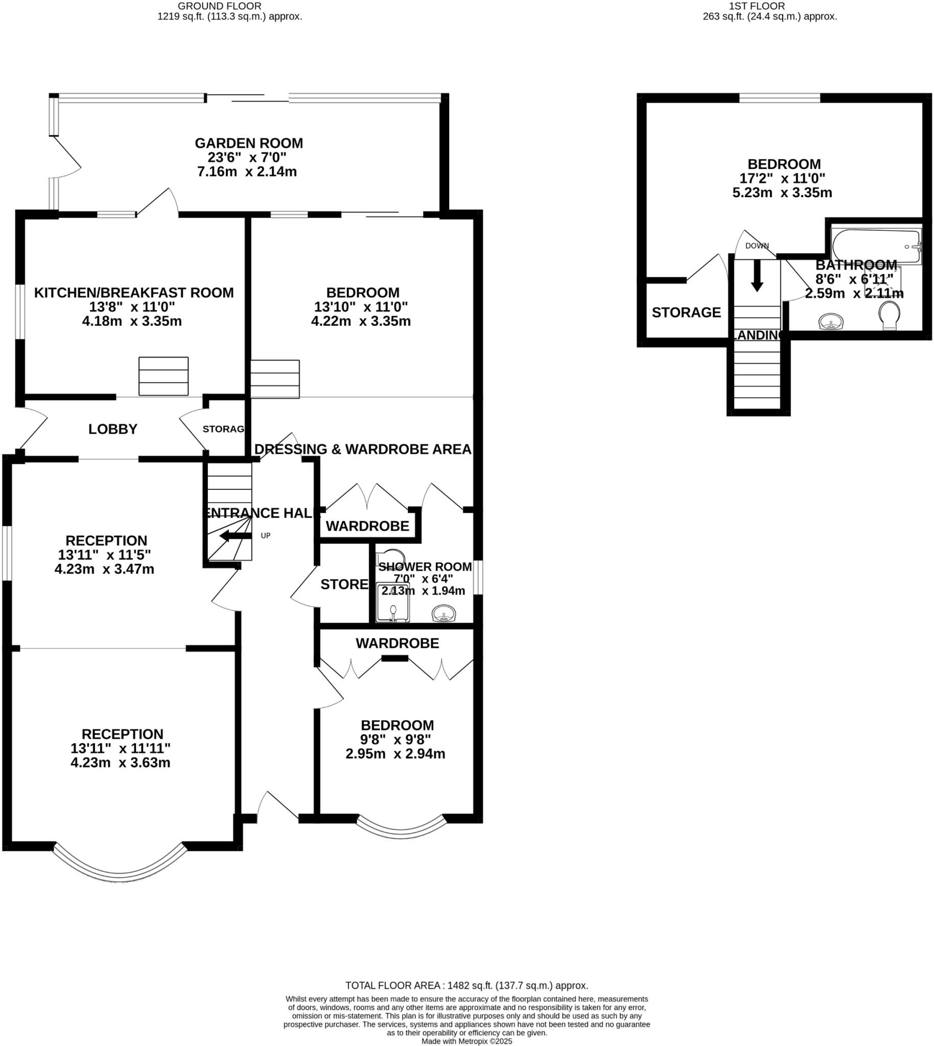
Three double bedrooms plus first-floor bedroom with dressing/store
Two bathrooms; largest ground-floor bedroom has en-suite and dressing area
Large driveway and substantial single garage for several vehicles
Mature, substantial rear garden; generous plot size
1970s interiors and fixtures — requires modernization and updating
EPC rating D; gas central heating and double glazing present
Freehold, chain free; located near schools and local amenities
Set back from the road on Gresley Wood Road, this heavily extended detached bungalow offers flexible family living across a generous single-storey footprint with an additional first-floor bedroom. The property features three double bedrooms, two bathrooms, a large sitting room opening to a dining area, split-level kitchen and a sun/garden room that connects living space to the mature rear garden. A large driveway and substantial garage provide plentiful off-street parking.
The house retains 1970s fittings and styling throughout, so buyers should expect cosmetic updating and modernization to achieve contemporary standards. The EPC is rated D and parts of the interior (fireplace, arched openings, ceiling textures) are dated; the layout, however, gives good scope for reconfiguration or improvement while preserving the bungalow’s character. Gas central heating and double glazing are already in place.
This home will suit growing families who value ground-floor living with an extra upstairs bedroom, downsizers wanting generous single-level space, or buyers seeking a renovation project with clear upside. Local amenities, nearby schools (several rated Good) and green spaces add practical appeal. The property is freehold and chain free, allowing a quicker move for the purchaser.
 4 bedroom bungalow for sale in York Road, Church Gresley, DE11 — £275,000 • 4 bed • 2 bath • 2000 ft²
 4 bedroom bungalow for sale in York Road, Church Gresley, DE11 — £275,000 • 4 bed • 2 bath • 2000 ft² 3 bedroom detached bungalow for sale in Gresley Wood Road, Church Gresley, DE11 9QN, DE11 — £340,000 • 3 bed • 1 bath • 987 ft²
 3 bedroom detached bungalow for sale in Gresley Wood Road, Church Gresley, DE11 9QN, DE11 — £340,000 • 3 bed • 1 bath • 987 ft² 3 bedroom bungalow for sale in Ashby Road, Woodville, Swadlincote, Derbyshire, DE11 — £350,000 • 3 bed • 1 bath • 2085 ft²
 3 bedroom bungalow for sale in Ashby Road, Woodville, Swadlincote, Derbyshire, DE11 — £350,000 • 3 bed • 1 bath • 2085 ft² 3 bedroom bungalow for sale in Burton Road, Midway, Swadlincote, Derbyshire, DE11 — £300,000 • 3 bed • 1 bath • 904 ft²
 3 bedroom bungalow for sale in Burton Road, Midway, Swadlincote, Derbyshire, DE11 — £300,000 • 3 bed • 1 bath • 904 ft² 2 bedroom bungalow for sale in Woodfield Drive, Swadlincote, Derbyshire, DE11 — £320,000 • 2 bed • 1 bath • 898 ft²
 2 bedroom bungalow for sale in Woodfield Drive, Swadlincote, Derbyshire, DE11 — £320,000 • 2 bed • 1 bath • 898 ft² 3 bedroom detached bungalow for sale in Wood Lane, Newhall, DE11 — £375,000 • 3 bed • 2 bath • 905 ft²
 3 bedroom detached bungalow for sale in Wood Lane, Newhall, DE11 — £375,000 • 3 bed • 2 bath • 905 ft²






















































































