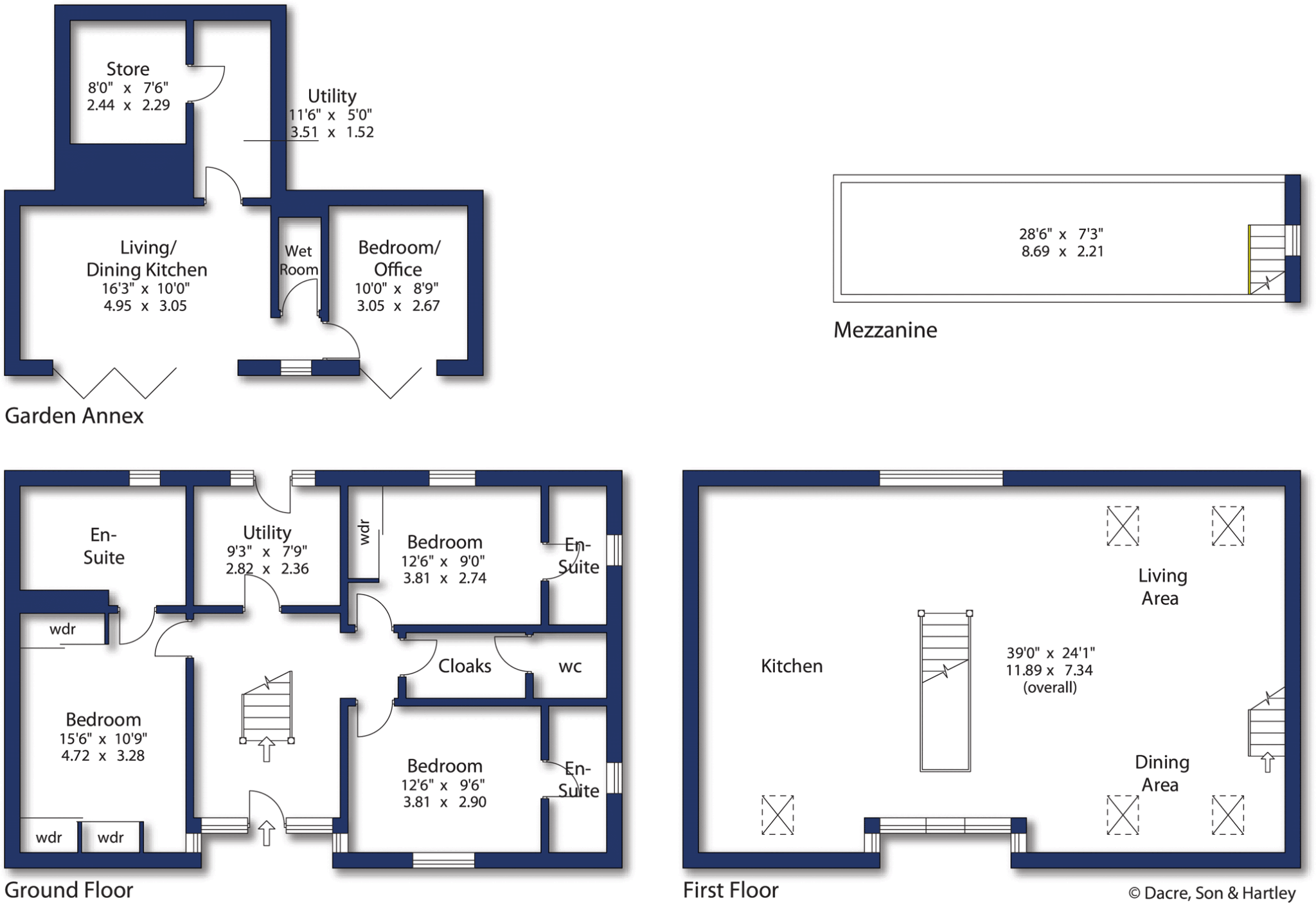
**Standout Features:**
- Grade II Listed barn conversion with period charm
- Three spacious double bedrooms, each with en suite
- Expansive open-plan living/kitchen/dining area
- Inviting mezzanine level perfect for multiple uses
- Gated parking for two vehicles
- Landscaped gardens with a private courtyard
- Includes a versatile detached garden room/annex
**Potential Concerns:**
- Listed property status may limit alteration opportunities
- Property condition may require ongoing maintenance due to age
- Located in an area with above-average crime rates
Discover the perfect blend of historic charm and modern elegance at Old Hall Barn, a remarkable Grade II listed barn conversion nestled in the heart of the scenic village of Esholt. With a generous 1,966 square feet of space, this exquisite home features three double bedrooms, each boasting its own luxurious en suite bathroom. The first-floor open-plan living, kitchen, and dining area captivates with soaring ceilings, exposed stonework, and ample natural light, creating the perfect space for relaxation and entertaining. The eye-catching mezzanine above offers endless possibilities—imagine a cozy reading nook or a productive home office.
Outside, the beautifully landscaped gardens provide a tranquil retreat, while the gated courtyard offers secure parking and a charming detached garden room, ideal for guests or home-based work. Embrace a lifestyle of comfort and character in this exclusive village setting, conveniently close to local amenities, sought-after schools, and excellent transport links. With no onward chain, this property is ready for you to make it your own, but act quickly—properties of this caliber don’t stay on the market for long!
5 bedroom barn conversion for sale in Hodgson Fold, Bradford, BD2 — £550,000 • 5 bed • 3 bath • 2132 ft²
5 bedroom house for sale in Leach Way, Riddlesden, Keighley, West Yorkshire, BD20 — £525,000 • 5 bed • 2 bath • 3923 ft²
4 bedroom barn conversion for sale in Dye Royd Barn, Headley Lane Thornton, Bradford, West Yorkshire, BD13 3LX, BD13 — £535,000 • 4 bed • 2 bath • 1786 ft²
4 bedroom detached house for sale in Dean House Farm, Allerton Lane, BD15 — £480,000 • 4 bed • 3 bath • 2799 ft²
3 bedroom barn conversion for sale in Kildwick Hall Mews, Kildwick, North Yorkshire, BD20 — £750,000 • 3 bed • 2 bath • 2079 ft²
3 bedroom terraced house for sale in Rylstone, Skipton, North Yorkshire, BD23 — £525,000 • 3 bed • 2 bath • 1614 ft²






























































































































































































