**Standout Features:**
- Grade II listed converted barn with stunning character
- Three spacious bedrooms and two modern bathrooms
- Open-plan living/dining area with rustic-modern finishes
- Updated kitchen with high-end appliances and marble countertops
- Enviable location in a peaceful hamlet setting
- Indian stone paved patio and off-street gravel parking
- Currently operates as a holiday let, offering excellent rental potential
- Fast broadband and excellent mobile reception
**Potential Concerns:**
- Listed property status may complicate renovations
- Possible limitations imposed by the Section 106 occupancy clause
Discover the charm of this Grade II listed barn conversion, nestled in a tranquil hamlet within the scenic Yorkshire Dales National Park. Featuring three generously sized bedrooms, two bathrooms, and open-plan living spaces illuminated by large windows, this home is designed for both comfort and style. Highlighted by its rustic-modern kitchen equipped with premium appliances, the property extends seamlessly to a beautifully maintained Indian stone paved patio, perfect for outdoor relaxation or entertainment. Currently utilized as a holiday let, this property not only serves as a cozy retreat but also holds robust rental potential.
Located within proximity to local amenities, picturesque villages, and highly rated schools, it offers an inviting lifestyle in an affluent area with a low crime rate. However, potential buyers should be mindful of the listed status, which may introduce some restrictions regarding renovations and modifications. Seize this unique opportunity to own a character-rich property in a stunning location—perfect for families, investors, or those seeking a serene getaway. Don’t miss out on this captivating home that combines heritage with modern comfort; properties of this caliber are rare on the market!
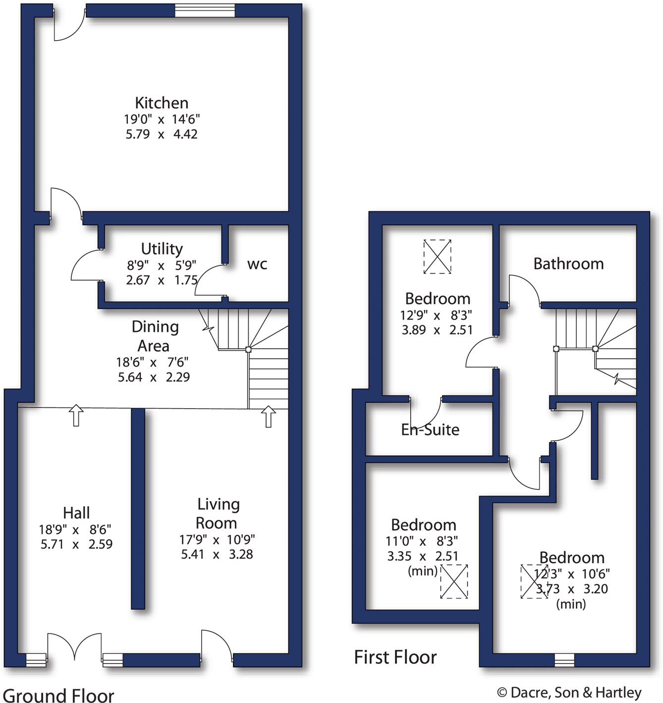
4 bedroom end of terrace house for sale in Rylstone, Skipton, North Yorkshire, BD23 — £625,000 • 4 bed • 2 bath • 2065 ft²
3 bedroom barn conversion for sale in Kildwick Hall Mews, Kildwick, North Yorkshire, BD20 — £750,000 • 3 bed • 2 bath • 2079 ft²
5 bedroom house for sale in Leach Way, Riddlesden, Keighley, West Yorkshire, BD20 — £525,000 • 5 bed • 2 bath • 3923 ft²
4 bedroom semi-detached house for sale in Kildwick, North Yorkshire, BD20 — £575,000 • 4 bed • 2 bath • 1829 ft²
3 bedroom detached house for sale in Foldshaw Lane, Harrogate, North Yorkshire, HG3 — £400,000 • 3 bed • 3 bath • 1300 ft²
5 bedroom detached house for sale in Old Hall Laithe & Barn on The Green, Kilnsey, Skipton, BD23 — £850,000 • 5 bed • 3 bath • 2700 ft²






































































