Bright period flat near Myatt's Fields Park, ideal for first-time buyers.
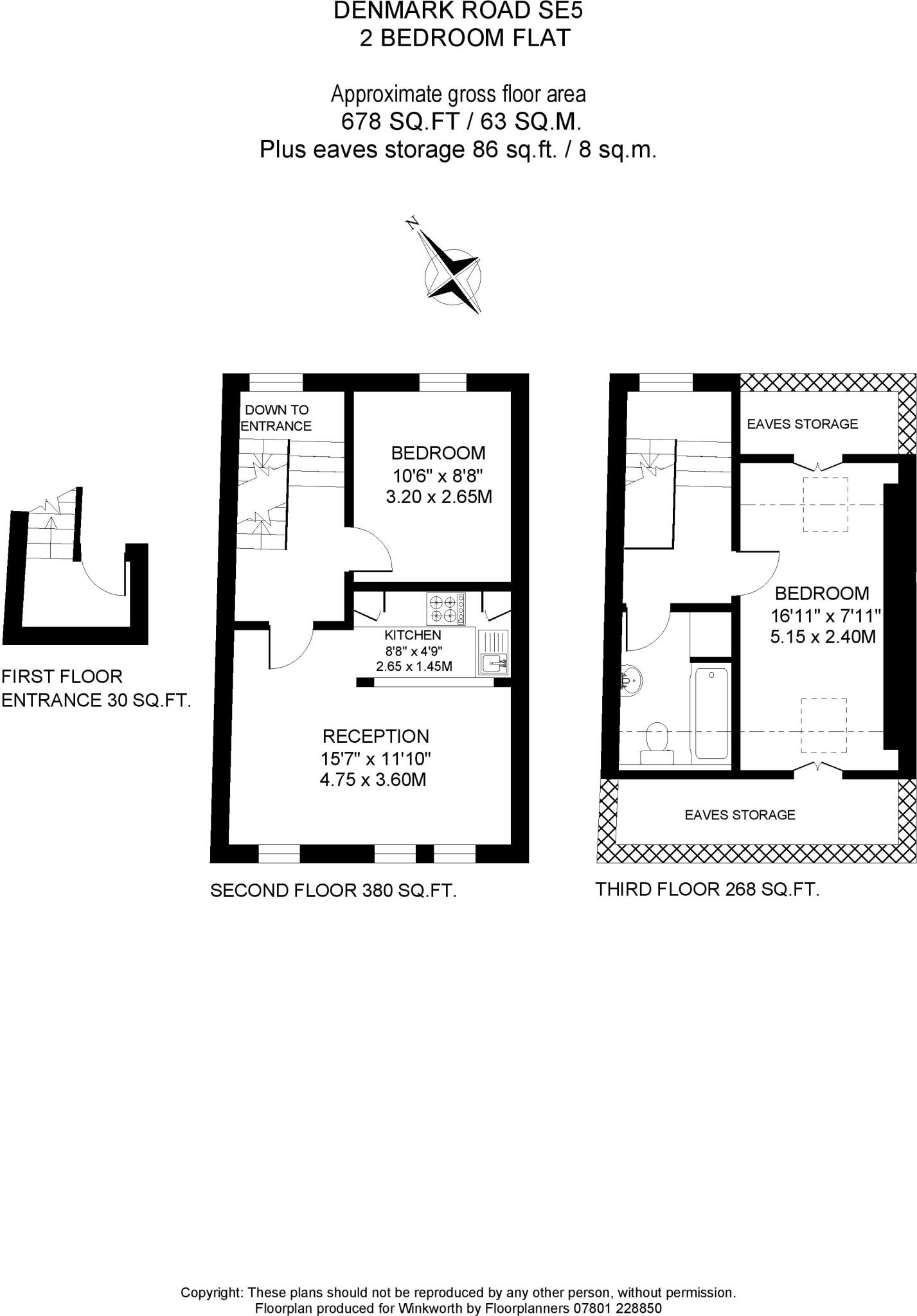
Approximately 678 sq ft split-level two-bedroom layout
Set across the first and second floors, this split-level two-bedroom flat offers a bright, airy layout with generous top-floor sleeping space and plentiful natural light from large sash windows. The open-plan reception and kitchen provide a comfortable living and entertaining area, while useful eaves storage adds practical space. At about 678 sq ft, the apartment suits first-time buyers or professionals seeking a characterful home close to Myatt’s Fields Park and strong transport links (Denmark Hill ~0.8 miles).
The flat comes with tangible ownership advantages: share of freehold and a low annual service charge of around £900, with no ground rent and a long lease reported as having approximately 103 years remaining. Utilities are standard mains connections, gas central heating with boiler and radiators, and ultrafast broadband and excellent mobile signal support home working and streaming.
Buyers should be aware of several material points. The EPC is rated E, and the building is solid-brick with assumed lack of cavity insulation, so heating costs and thermal comfort may be higher than modern properties. There is a single family bathroom and a compact kitchen, which may require updating to suit some tastes. The area is described as deprived overall and crime levels average; the location is inner-city cosmopolitan with mixed local amenities.
This property offers a blend of period charm, good natural light and practical ownership terms, balanced against energy-efficiency and upgrade considerations. It will particularly appeal to purchasers looking for a well-located, characterful flat with clear potential for cosmetic improvement and longer-term value growth.
2 bedroom flat for sale in Eastlake Road, London, SE5 — £525,000 • 2 bed • 1 bath • 922 ft²
2 bedroom flat for sale in Linwood Close, Camberwell, SE5 — £499,950 • 2 bed • 1 bath • 800 ft²
2 bedroom flat for sale in Lilford Road, Camberwell, London, SE5 — £525,000 • 2 bed • 1 bath • 1235 ft²
2 bedroom flat for sale in Southwell Road, Camberwell, SE5 — £550,000 • 2 bed • 1 bath • 701 ft²
2 bedroom apartment for sale in Grosvenor Terrace, London, SE5 — £579,950 • 2 bed • 1 bath • 910 ft²
2 bedroom flat for sale in Dagmar Road, London, SE5 — £550,000 • 2 bed • 1 bath • 777 ft²














































