Period character and modern kitchen, 0.6 miles from St Albans City station — ideal for families.
Three bedrooms; principal bedroom with en-suite
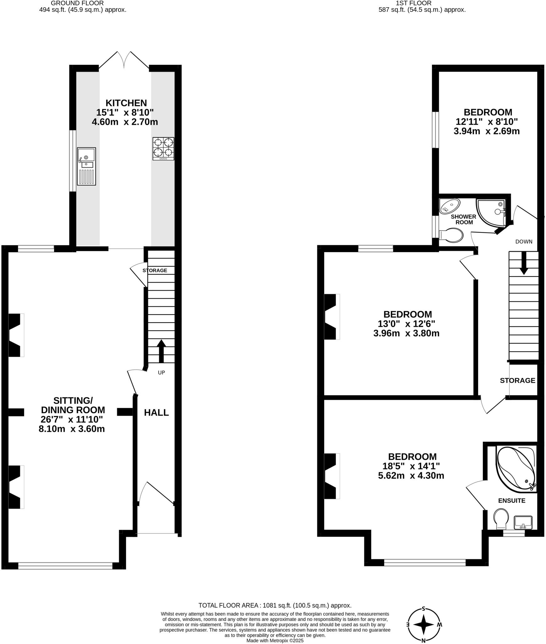
Set in the heart of St Albans, this well-presented three-bedroom mid-terrace combines period character with modern convenience. The principal bedroom benefits from an en-suite and the bright open-plan lounge/diner has a dual aspect that fills the house with natural light. A separate, modern kitchen with integrated appliances and a private rear garden with patio and lawn complete the practical family layout across two floors.
The property’s flying freehold gives extra first-floor space compared with typical terraces, making the principal bedroom particularly generous. Accommodation is tastefully decorated and appears well maintained, so it will suit buyers seeking a comfortable, move-in-ready home close to schools, Verulamium Park and St Albans City station (approx. 0.6 miles).
Important practical information is set out plainly: the house is on solid brick walls likely without cavity insulation (assumed), has council tax at an above-average band, and sits on a small plot typical of terrace stock. Crime statistics are above local average — prospective buyers should verify their own comfort with this. The terrace position limits side access and external scope, and any internal reconfiguration or exterior changes will be subject to planning and party-wall considerations.
Overall this property will appeal to families and professionals who prioritise location, light and a generous upstairs footprint, but who are comfortable with the constraints of a period terrace (smaller garden, potential retrofit work for insulation) and the practical costs of council tax and neighborhood safety considerations.
4 bedroom end of terrace house for sale in Eaton Road, St. Albans, Hertfordshire, AL1 — £975,000 • 4 bed • 2 bath • 1532 ft²
4 bedroom semi-detached house for sale in Holyrood Crescent, St. Albans, Hertfordshire, AL1 — £575,000 • 4 bed • 3 bath • 1202 ft²
3 bedroom end of terrace house for sale in Folly Lane, St. Albans, Hertfordshire, AL3 — £950,000 • 3 bed • 4 bath • 1610 ft²
2 bedroom terraced house for sale in Thornton Street, St. Albans, Hertfordshire, AL3 — £575,000 • 2 bed • 1 bath • 704 ft²
4 bedroom terraced house for sale in St. Johns Court, Beaumont Avenue, St. Albans, Hertfordshire, AL1 — £700,000 • 4 bed • 2 bath • 1264 ft²
2 bedroom terraced house for sale in Folly Lane, St. Albans, AL3 — £700,000 • 2 bed • 1 bath • 1229 ft²


























































































