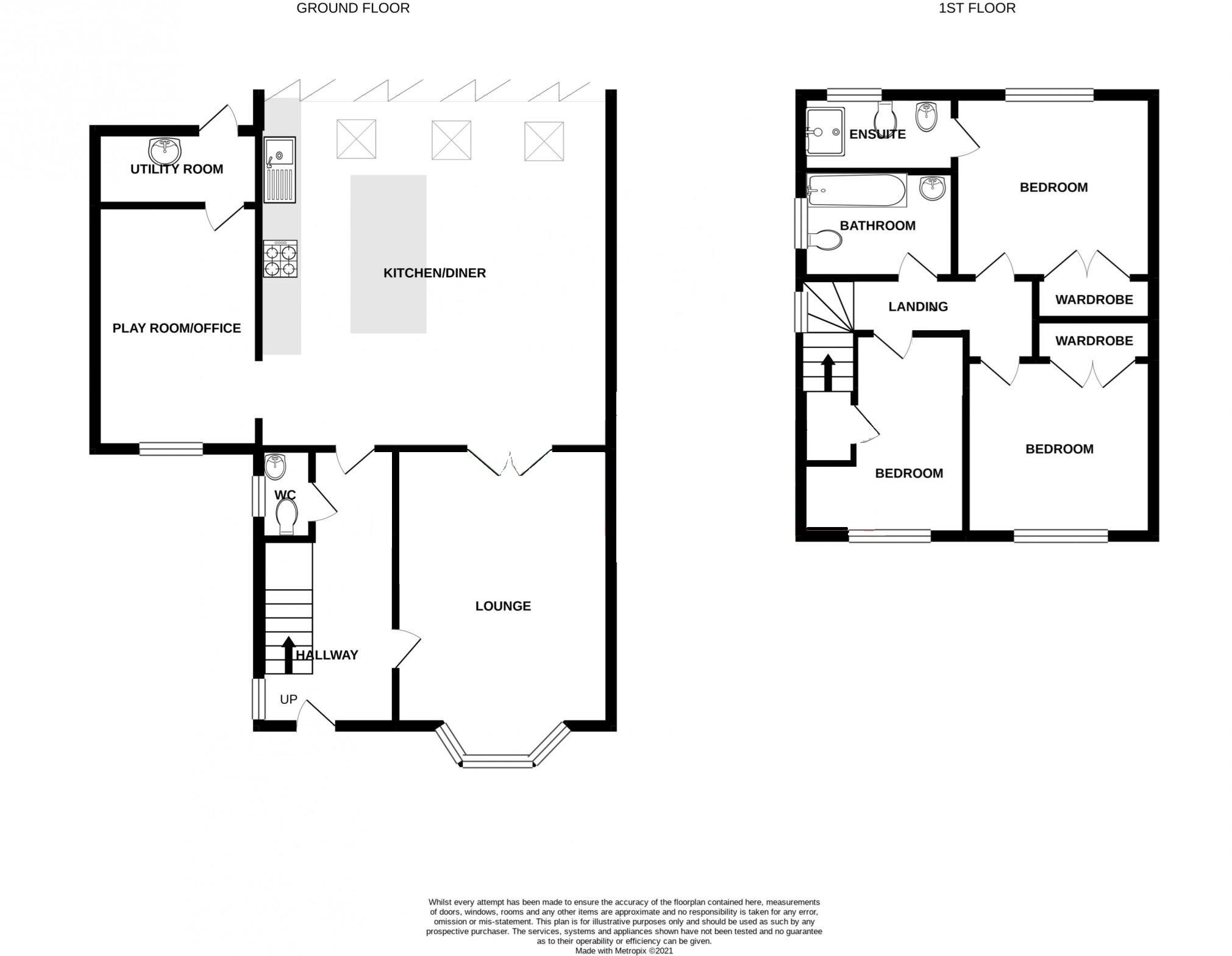
**Property Highlights:**
- Spacious 3-bedroom detached home with a modern Victorian design
- En-suite shower room and additional family bathroom
- Versatile kitchen/diner/sitting room with bi-fold doors leading to the garden
- Generous lounge plus a playroom/study for flexibility
- Utility room and cloakroom for added convenience
- Beautiful rear garden with patio and lawn, perfect for outdoor living
- Off-street parking available
- Located in an affluent suburban community with good transport links
This inviting 3-bedroom detached home perfectly blends modern comfort with a classic Victorian style, appealing to families and first-time buyers alike. With a spacious layout of 824 square feet, features include an en-suite to the master bedroom, a family bathroom, and a convenient ground floor cloakroom. The heart of the home, a large kitchen/diner/sitting room, boasts bi-fold doors that create a seamless flow between indoor and outdoor spaces, ideal for entertaining.
The additional lounge and playroom/study provide flexible living options, while the utility room adds practicality to daily life. Step outside to a decent-sized garden adorned with mature trees and a lawn, ready for your personal touch.
Despite its many attractions, potential buyers should note that broadband speeds in the area are currently slow, which may impact those needing high-speed internet access. With off-street parking and a prime location near reputable schools, parks, and community amenities, this property is a fantastic opportunity for those looking to settle in a prosperous suburban setting. Act quickly—homes of this caliber don’t stay on the market for long!
5 bedroom link detached house for sale in The Tythings, Howe Green, Chelmsford, CM2 — £850,000 • 5 bed • 4 bath • 2734 ft²
4 bedroom detached house for sale in The Lintons, Sandon, Chelmsford, Essex, CM2 — £700,000 • 4 bed • 2 bath • 1722 ft²
3 bedroom detached house for sale in Tabors Avenue, Chelmsford, CM2 — £775,000 • 3 bed • 2 bath • 1539 ft²
5 bedroom semi-detached house for sale in Park View Crescent, Chelmsford, CM2 — £580,000 • 5 bed • 2 bath • 1941 ft²
4 bedroom detached house for sale in Foxholes Road, Great Baddow, Chelmsford, CM2 — £500,000 • 4 bed • 2 bath • 1814 ft²
3 bedroom semi-detached house for sale in Church Road, Chelmsford, CM3 — £415,000 • 3 bed • 1 bath • 928 ft²










































































