NR23 1LD - 4 bedroom town house for sale in East End, WellsNexttheSea,…

View on Property Piper

4 bedroom town house for sale in East End, Wells-Next-the-Sea, NR23

Summary - CORWELL HOUSE EAST END WELLS-NEXT-THE-SEA NR23 1LD

4 bed 1 bath Town House

Grade II waterside townhouse with garden and double garage—period charm but needs full interior modernisation..
Grade II listed townhouse dating from 1678 with strong period character
Just steps from East Quay and minutes from town amenities
South-facing enclosed garden with mature fig tree
Large insulated double garage with power, water and WC provision
Requires full internal modernisation throughout
Single bathroom plus separate WC — may be limiting for families
Re-roofed and insulated, conservation glazing and dormers fitted 2011
High flood risk; listed status restricts renovation options
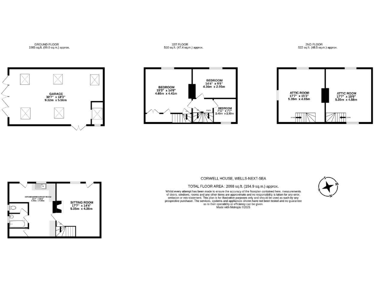
Corwell House is a rare surviving 17th-century Grade II listed townhouse tucked just back from East Quay in Wells-next-the-Sea. Set over three floors with exposed beams and historic brick-and-flint elevations, the house offers immediate period character and exceptional proximity to the harbour, shops and cafes.

The property provides a flexible four-bedroom layout with two loft rooms, a large sitting room with a wood-burning stove, kitchen with Rayburn and a south-facing enclosed garden. A modern, well-insulated double garage (2014) with power and water adds valuable parking and workshop space and has provision to add a WC/bathroom.

Important practical points: the interior requires complete modernisation and currently has only one bathroom and separate WC. The house is Grade II listed, which will restrict alterations and may complicate works and consents. There is a high flood risk for the area — buyers should seek specialist advice on insurance and flood resilience measures.

Several recent improvements reduce immediate structural work: the roof was lifted and insulated and dormer windows added in 2011, conservation double-glazed hardwood windows were fitted, and the chimney and flue works were carried out. Offered chain-free, the property is a blank canvas for a buyer who values historic fabric and waterside living and is prepared to update the interior sympathetically under listed-building controls.

Property Details

Image Descriptions

Rooms

Textual Property Features

Target Audience

AI Tags

Detected Visual Features

Nearby Schools

Nearest Bars And Restaurants

,,,,}

Nearest General Shops

,,}

Nearest Grocery shops

,,}

Nearest Supermarkets

,,}

Nearest Religious buildings

,,}

Nearest Medical buildings

,,,}

Nearest Leisure Facilities

,,,,}

Nearest Tourist attractions

,,}

Nearest Train stations

,,,,}

Nearest Bus stations and stops

,,,,}

Nearest Hotels

,,}

Tags

Local Market Stats

AirBnB Data

Similar Properties

Meta

High Res Images

Compatible Images

Low res Images

Thumbnails

Raw Images

High Res Floorplan Images

Compatible Floorplan Images

Low res Floorplan Images

FloorplanImages Thumbnail

Raw Floorplan Images