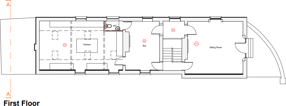
**Standout Features:**
- Proposed conversion to **4 en-suite bedrooms**
- **2,261 sq ft** of living space
- **Prime town centre location** overlooking The Buttlands
- Grade II listed building with rich **Georgian architecture**
- **No onward chain**, offering immediate potential
- **Planning permissions** for commercial to residential conversion and external alterations
- Bright and spacious rooms with high ceilings and original features
- Plans for a **roof garden** to maximize outdoor enjoyment
**Potential Downsides:**
- Grade II listed status may complicate future renovations
- Minor restoration needed to preserve historical integrity
Discover a rare opportunity to transform this iconic Georgian townhouse in the vibrant heart of Wells into your dream home. Spanning a generous **2,261 sq ft**, this property promises the potential for **four en-suite bedrooms**, along with spacious reception areas and a bright kitchen/diner, ideal for family living or rental investment. Recently granted planning permissions streamline your conversion process, reducing potential hurdles.
With its **high ceilings**, traditional sash windows, and charming views over The Buttlands, this residence merges comfort with character. Enjoy the proposed roof garden and a delightful courtyard, perfect for outdoor relaxation. Located near local amenities and good-rated schools, this property offers both convenience and charm. Don’t miss this unique opportunity to secure a **chain-free** property with substantial renovation potential! Act fast—landmark buildings like this don’t stay on the market for long.
3 bedroom town house for sale in The Buttlands, Wells-next-the-Sea, NR23 — £650,000 • 3 bed • 2 bath • 2005 ft²
6 bedroom detached house for sale in Chancery Lane, Wells-next-the-Sea, NR23 — £1,200,000 • 6 bed • 3 bath • 4639 ft²
4 bedroom town house for sale in East End, Wells-Next-the-Sea, NR23 — £615,000 • 4 bed • 1 bath • 2097 ft²
4 bedroom town house for sale in Standard Road, Wells-next-the-Sea, NR23 — £999,950 • 4 bed • 4 bath • 1433 ft²
3 bedroom cottage for sale in Wells-next-the-Sea, Norfolk, NR23 — £550,000 • 3 bed • 1 bath • 1125 ft²
3 bedroom semi-detached house for sale in Mill Road, Wells-next-the-Sea, NR23 — £375,000 • 3 bed • 1 bath • 1047 ft²


























































































