**Standout Features:**
- Development land with planning permission for five detached dwellings.
- Approximately half an acre in an appealing, scenic location.
- Close proximity to town center, motorway links, schools, and amenities.
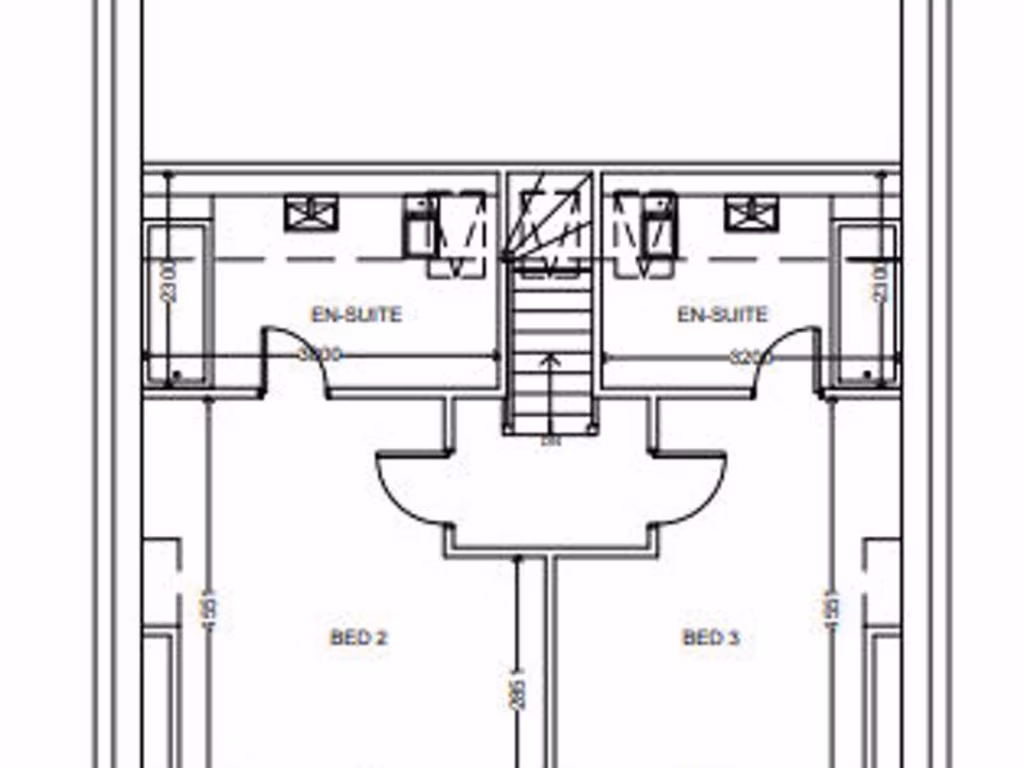
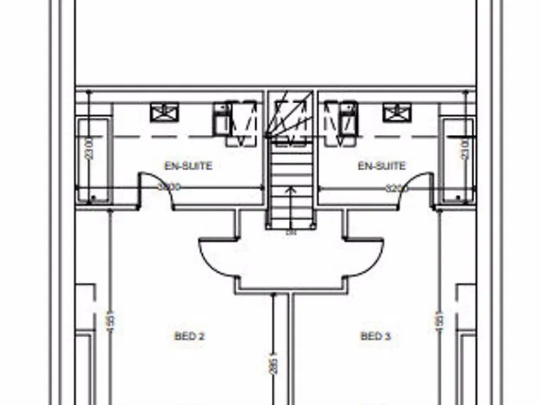
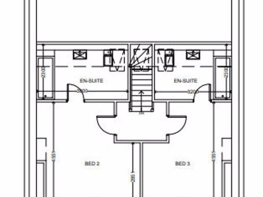
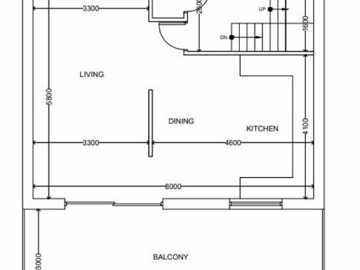
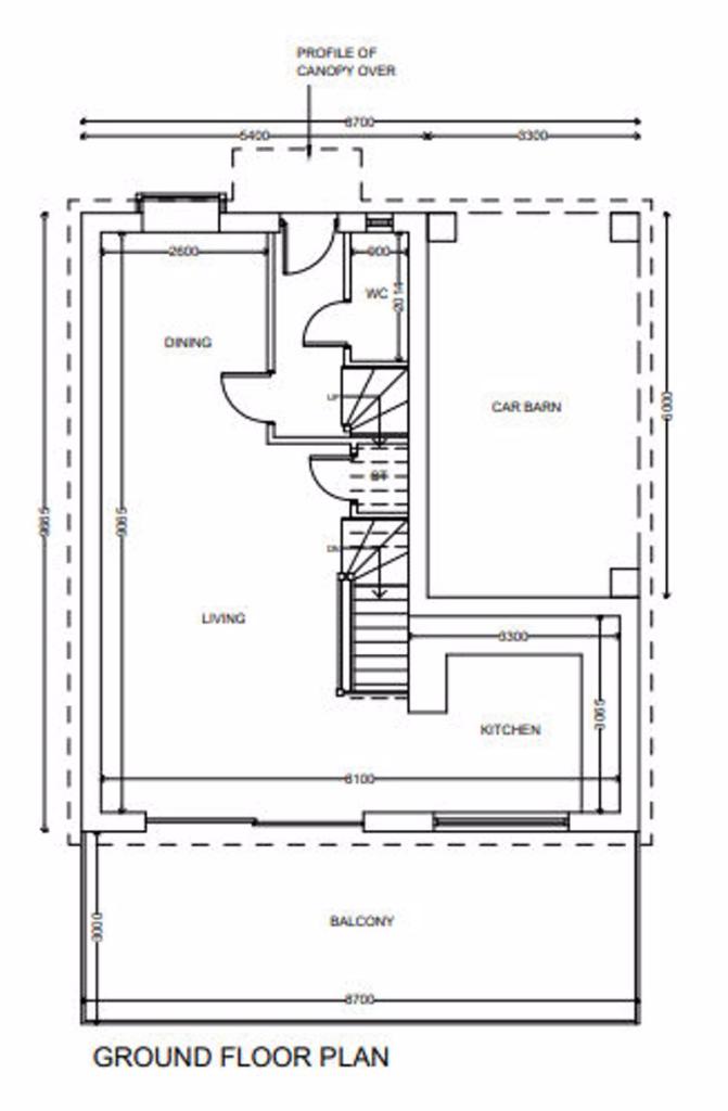
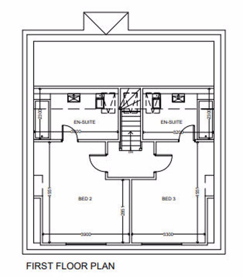
- Designs include stylish houses with balconies for countryside views.
- No upward chain delay; freehold property not subject to VAT.
- Auction sale offering a rare investment opportunity.
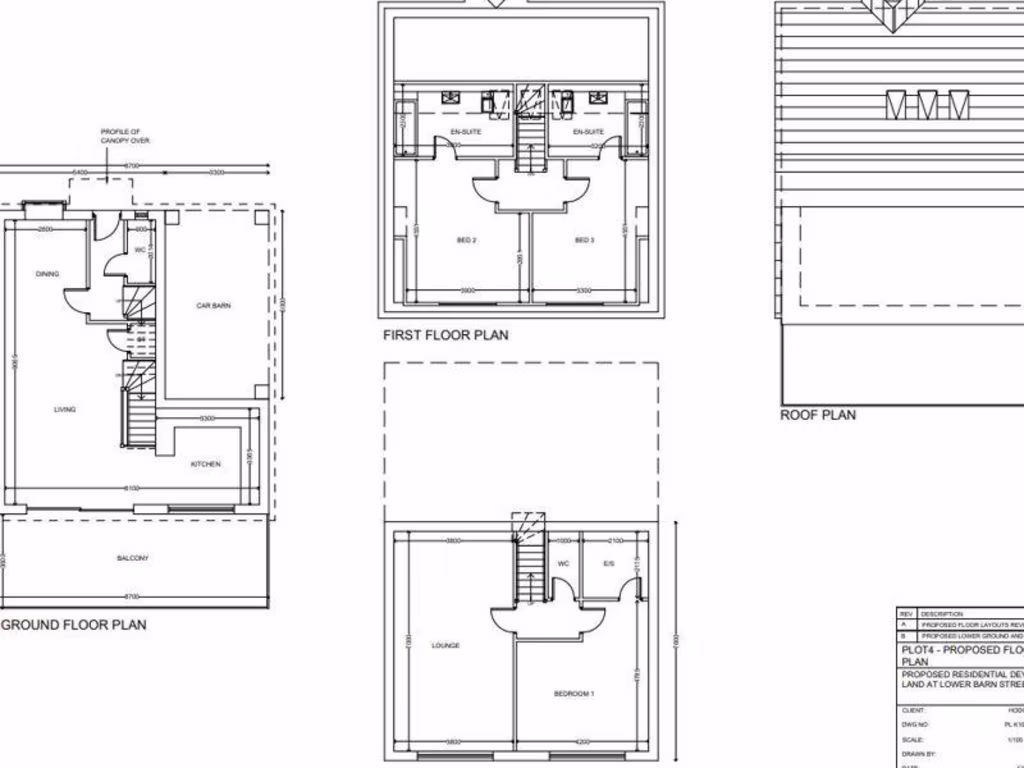
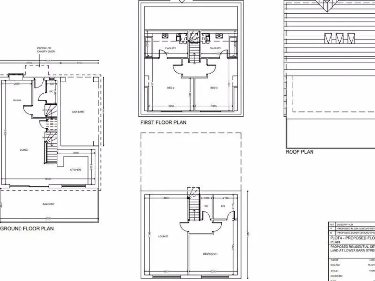
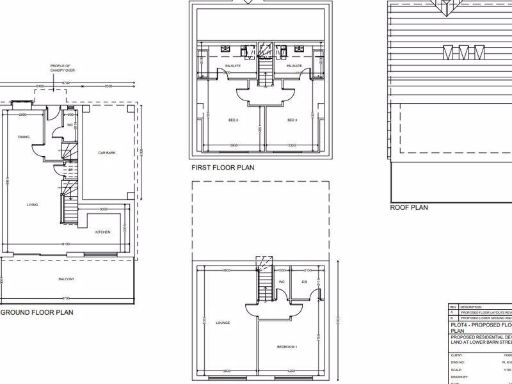
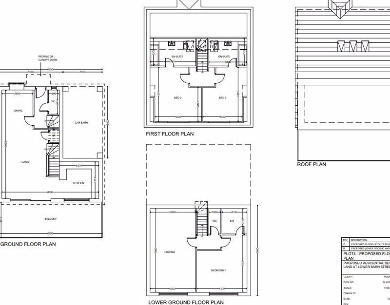
This exciting development site on Lower Barn Street in Darwen presents a unique investment opportunity with planning permission already secured for five detached homes. Spanning nearly half an acre, the property is nestled in a sought-after residential area with beautiful countryside views, providing potential buyers the chance to create stylish residences complete with balconies—a perfect enhancement to take advantage of the landscape.
Strategically located just three-quarters of a mile from Darwen town center and near key motorway access, this site is ideal for families and investors alike. The surrounding area boasts excellent local schools with good Ofsted ratings, making it an attractive prospect for those seeking quality living. With no upward chain and a freehold title, the value here is evident, making it a rare find in today's market.
This is a time-sensitive opportunity, so take advantage of the potential to develop in a growing community. Contact us to arrange a viewing or for further details.
Land for sale in Development site, Lower Barn Street, Off Cranberry Lane, Darwen, BB3 — £205,000 • 1 bed • 1 bath
Land for sale in The Centurion, Higher Croft Road, Darwen, Lancashire, BB3 — £500,000 • 1 bed • 1 bath
Land for sale in Land at Johnson road, Darwen, BB3 — £82,000 • 1 bed • 1 bath
Land for sale in Astley Street, Darwen, BB3 — £150,000 • 3 bed • 3 bath • 2071 ft²
Land for sale in Blackburn, Lancashire, BB1 2LW, BB1 — £525,000 • 1 bed • 1 bath
Land for sale in 94 Tockholes Road, Darwen, BB3 — £72,000 • 1 bed • 1 bath • 3315 ft²






































































































