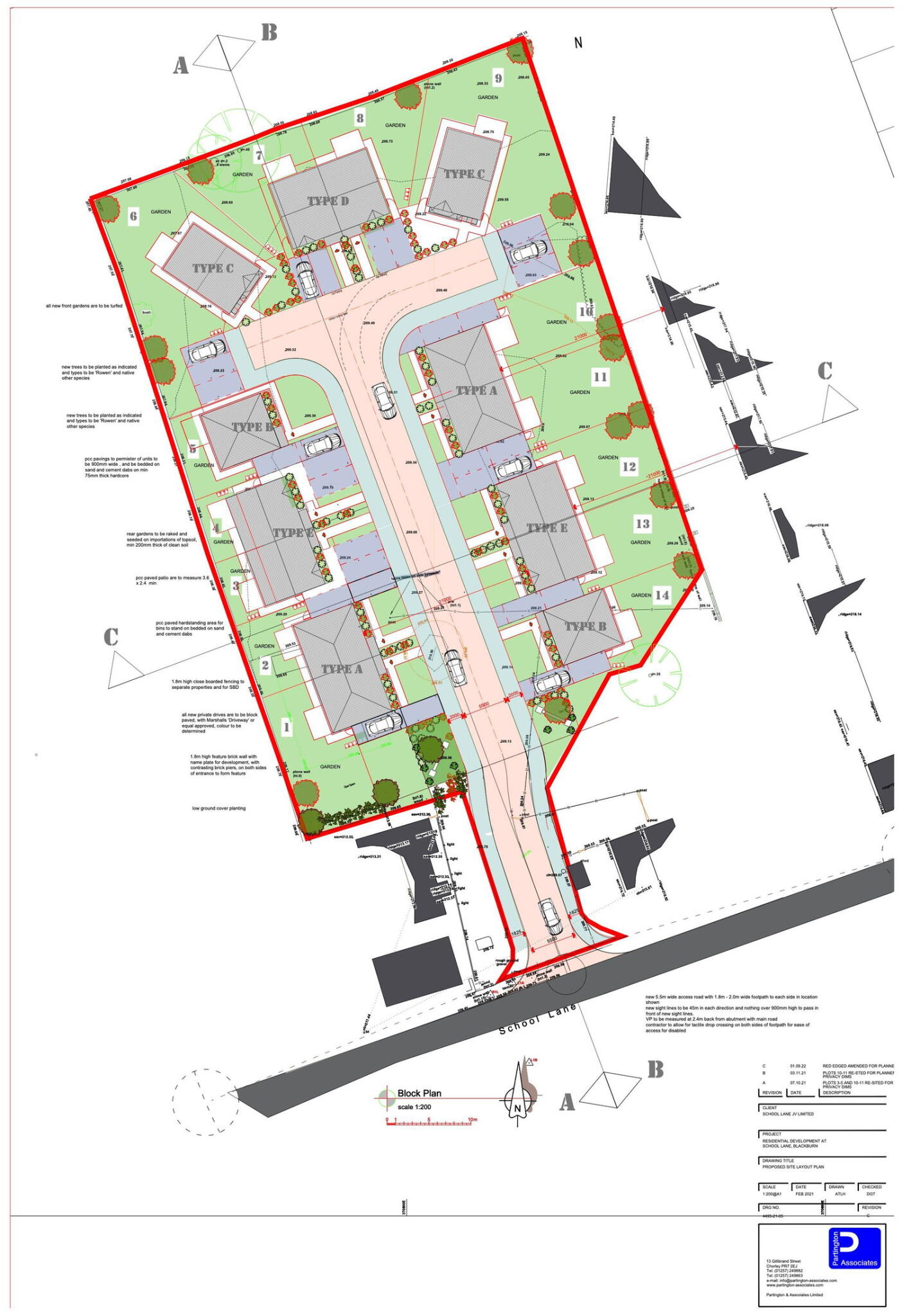
### Key Features:
- Development opportunity: Full planning permission secured for 14 dwellings
- Spacious plot: Approximately 1.12 acres of flat land
- Location: Nestled privately off School Lane in Blackburn, Lancashire, BB1 2LW
- Accessibility: Short distance to local amenities including offices, a post office, bars, and restaurants
- Tenure: Freehold
- Auction details: Sold via modern auction with a 56-day reservation period
This prime land opportunity in Blackburn is ready for development, featuring full planning permission for 14 new dwellings set on a generous 1.12-acre plot. Positioned away from the hustle and bustle of the main road, the site offers a rare chance for builders and investors to create an exclusive residential estate in a growing community.
Benefitting from excellent mobile signal and average broadband speeds, this flat, vacant land opens the door to modern living amid green spaces, appealing to families seeking a serene lifestyle. There are several reputable schools nearby, making it a great option for family-oriented developments.
While the crime rate in the area is very high, this development opportunity is priced competitively at £525,000, presenting significant renovation potential or a fresh start for future housing. Interested buyers should act quickly; properties with this level of development potential rarely remain available for long. Don't miss out on the chance to make your mark in this vibrant area!
Commercial development for sale in Development Land at Hud Hey Road, Acre, Haslingden, Lancashire BB4 5JH, BB4 — £700,000 • 1 bed • 1 bath
Land for sale in Development site, Lower Barn Street, Off Cranberry Lane, Darwen, BB3 — £205,000 • 1 bed • 1 bath
Land for sale in Development site, Lower Barn Street, Off Cranberry Lane, Darwen, BB3 — £205,000 • 1 bed • 1 bath
Land for sale in Colenso Road, Blackburn, Lancashire, BB1 — £190,000 • 1 bed • 1 bath • 25700 ft²
Mews property for sale in 1.25 Acres, Whalley Old Road, Blackburn, BB6 — £10,000 • 1 bed • 1 bath
Mews property for sale in 1.25 Acres, Whalley Old Road, Blackburn, BB6 — £15,000 • 1 bed • 1 bath


























