Central Earls Court two-bed with outdoor space and share of freehold.
Full-length south-facing patio with private garden access
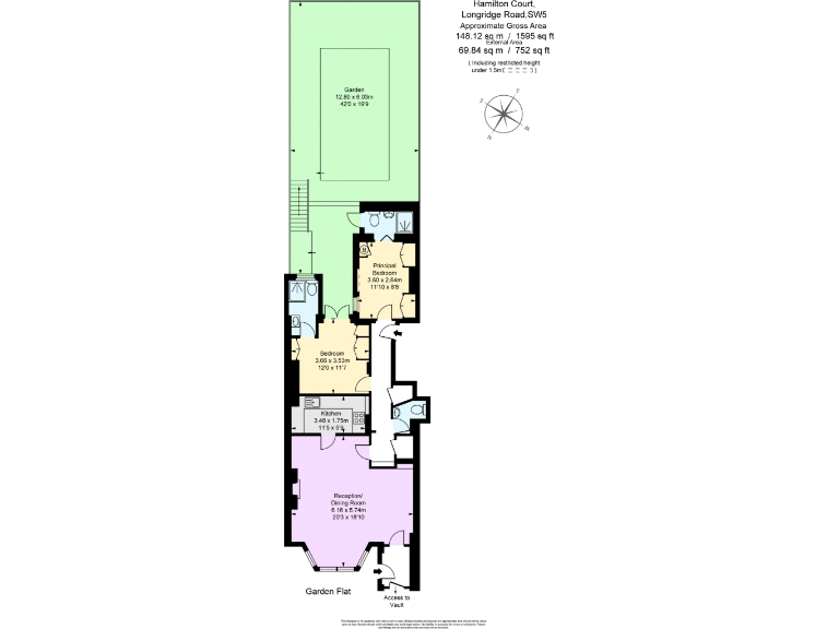
A bright Victorian garden apartment on Longridge Road, arranged with living space to the north and bedrooms to the south. The large bay-windowed reception maximises natural light and opens onto a full-length, south-facing patio—ideal for entertaining or relaxed outdoor living in central Earls Court. Two double bedrooms both access the garden’s lower tier, and the apartment includes two bathrooms and a separate study area off the reception.
Practical features include share of freehold tenure, off-street residents’ parking, secondary glazing and mains gas central heating with a boiler and radiators. The property is presented as warm and well-maintained with updated electrics and plumbing claimed by the owner. Total internal size is about 843 sq ft, with the garden included in a larger stated overall area.
Important matters to note: the building is Victorian (pre-1900) with solid brick walls and assumed lack of cavity insulation, and the EPC is rated D. Annual service charges are approximately £3,500 and Council Tax is Band E (above average). The area records higher crime levels and a degree of local deprivation, so prospective buyers should check security arrangements and consider these factors for family buyers or rental prospects.
This apartment will suit buyers after a characterful central-London home with a rare south-facing patio and practical layout. Investors and owner-occupiers should verify lease, service charge and title details with their solicitor, and consider modest cosmetic updates to bathrooms or insulation improvements to raise energy performance.
2 bedroom flat for sale in Longridge Road, Earl's Court, SW5 — £850,000 • 2 bed • 2 bath • 915 ft²
2 bedroom apartment for sale in Courtfield Gardens, London, SW5 — £800,000 • 2 bed • 1 bath • 716 ft²
2 bedroom ground floor flat for sale in Gledhow Gardens, London, SW5 — £1,200,000 • 2 bed • 2 bath • 829 ft²
2 bedroom flat for sale in Longridge Road, London, SW5 — £850,000 • 2 bed • 2 bath • 851 ft²
2 bedroom apartment for sale in Eardley Crescent, London, SW5 — £750,000 • 2 bed • 1 bath • 1163 ft²
2 bedroom apartment for sale in Old Brompton Road, London, SW5 — £800,000 • 2 bed • 2 bath • 832 ft²


















































