Large two-bedroom garden flat with long lease and development potential.
West-facing private garden ideal for entertaining and family use
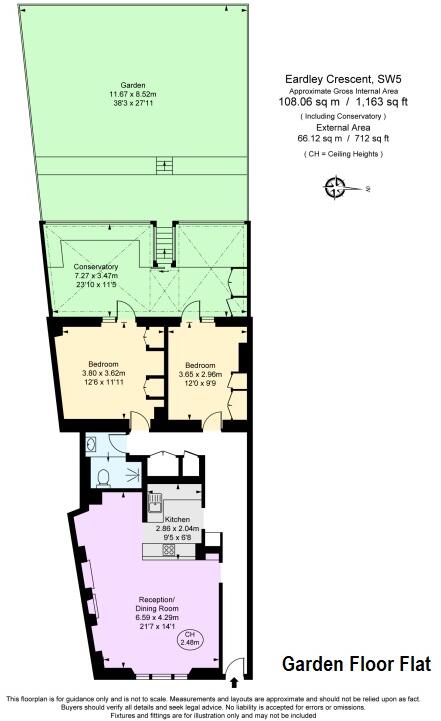
Set on a quiet stretch of Eardley Crescent, this unusually large two-bedroom garden apartment offers rare outdoor space in SW5. The west-facing garden and generous reception room with high ceilings provide comfortable family living and excellent entertaining potential. The property extends to approximately 1,163 sq ft, with a conservatory/project area that could add usable space if finished.
Built between 1900–1929, the flat retains period character and benefits from double glazing and a gas boiler with radiator heating. The long share-of-freehold tenure (986 years) is a strong ownership position. Local amenities, fast broadband and excellent mobile signal suit home workers and families; several highly regarded primary and secondary schools are within easy reach.
Buyers should note a few practical points: the conservatory is advertised as a development opportunity and will require work to maximise value. The building has solid brick walls with assumed no cavity insulation, so upgrading thermal insulation could be needed. Annual service charge is around £2,264 and council tax is above average (Band E). The area classification shows inner-city, multicultural and some local deprivation — weigh location benefits against this context.
This apartment will suit a family seeking space and outside area in Kensington & Chelsea, or a buyer keen to add value through targeted improvements. With long leasehold security and a substantial garden, it’s a standout ground-floor option that rewards practical upgrading rather than a turnkey sale.
2 bedroom apartment for sale in Eardley Crescent, Earls Court, London, SW5 — £750,000 • 2 bed • 2 bath • 798 ft²
2 bedroom apartment for sale in Old Brompton Road, London, SW5 — £800,000 • 2 bed • 2 bath • 803 ft²
2 bedroom flat for sale in Earls Court Road, Earls Court, SW5 — £1,175,000 • 2 bed • 2 bath • 1227 ft²
3 bedroom apartment for sale in Eardley Crescent, London, SW5 — £1,000,000 • 3 bed • 2 bath • 980 ft²
2 bedroom apartment for sale in Eardley Crescent, London, SW5 — £775,000 • 2 bed • 1 bath • 616 ft²
2 bedroom flat for sale in Earls Court Square, Earls Court, SW5 — £1,975,000 • 2 bed • 2 bath • 1184 ft²


























































