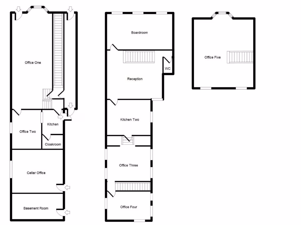
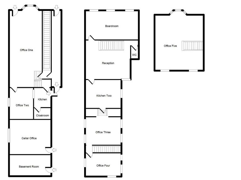
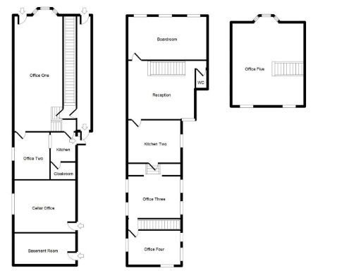
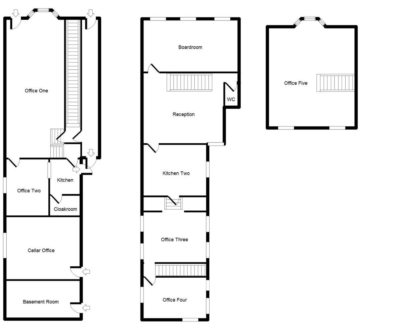
**Standout Features:**
- Large three-storey Victorian commercial property
- Ample office suites with high ceilings
- Potential for conversion to three flats (planning permission available)
- Kitchen and two cloakrooms
- Prime location on Vale Street, Denbigh
- EPC rating: D
- Freehold tenure
- Total area of approximately 2,415 square feet
**Summary Description:**
This impressive Victorian commercial property presents an exceptional investment opportunity in the heart of Denbigh. Spacious office suites span three floors, offering flexibility for businesses or potential conversion into three residential flats. With high ceilings and large windows, the property is filled with natural light and exudes character, making it conducive to both professional and creative endeavors. Additionally, the building includes a kitchen and two cloakrooms, enhancing its functionality.
While the property is in need of renovation, this provides a unique blank canvas for buyers looking to customize their own space. It is ideally suited for investors seeking rental potential in a community with high demand for mixed-use developments. The vibrant local area offers a wide array of amenities, ensuring convenience for any future occupants. Don't miss out on the chance to own a piece of Denbigh's architectural charm with significant upside potential—schedule your viewing today!
Office for sale in High Street, Denbigh, LL16 — £180,000 • 1 bed • 1 bath • 1754 ft²
Commercial property for sale in High Street, Denbigh, LL16 — £135,000 • 1 bed • 1 bath • 1902 ft²
Commercial property for sale in Highgate, Denbigh, LL16 — £225,000 • 3 bed • 1 bath
Commercial property for sale in Vale St, Denbigh, LL16 — £260,000 • 4 bed • 2 bath • 1562 ft²
Commercial property for sale in High Street, Denbigh, LL16 — £200,000 • 1 bed • 1 bath • 474 ft²
Office for sale in Back Row, Denbigh, LL16 — £99,000 • 1 bed • 1 bath • 1993 ft²


























































