Character home with huge garden and conversion potential close to the city centre.
- Terraced Victorian stone facade with period features
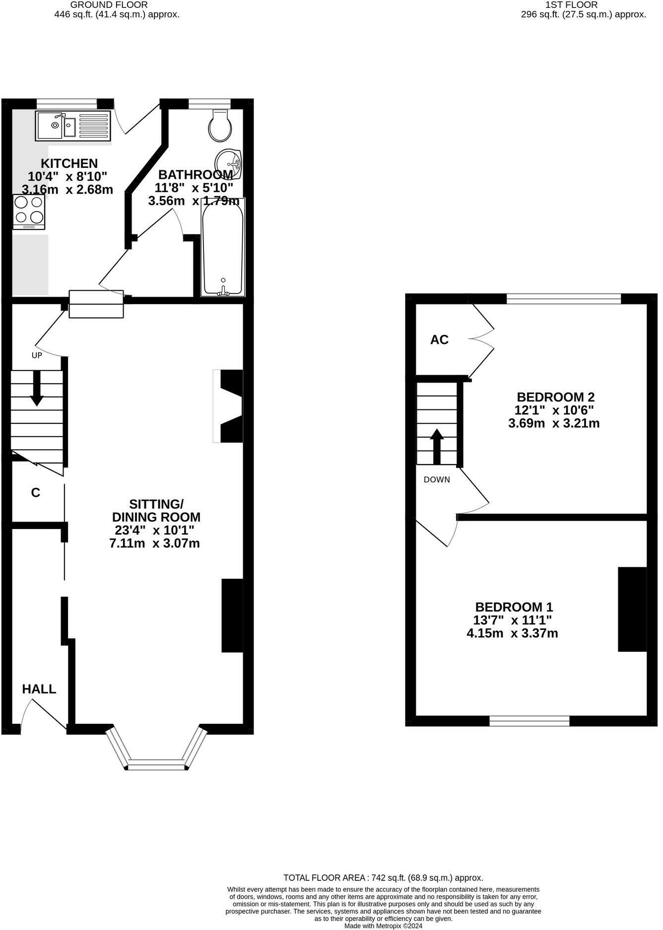
- Two double bedrooms with pleasant first-floor views
- Through living room with gas fire and back boiler
- Scope for roof conversion (subject to planning permission)
- Large rear garden approx. 125' (38m), previously productive
- Needs updating and improvement throughout
- Freehold and offered chain-free
A charming mid-terraced Victorian cottage on a popular North Road, a short walk from Wells city centre. The house offers two double bedrooms, a through living room with a gas fire and a long rear garden of around 125' (38m) — ideal for growing vegetables or extending (subject to planning). Sold freehold and chain-free, this property suits someone keen to personalise a period home close to local shops, schools and amenities.
The layout is traditional and straightforward, with a ground-floor bathroom and a kitchen opening to the garden. The property requires updating and modernisation throughout, so it will suit a buyer comfortable carrying out improvement works. The existing gas back boiler supplies central heating and hot water; buyers should budget for potential heating or boiler upgrades as part of renovation plans.
There is scope for a roof conversion (subject to planning permission) which could increase living space and value, subject to local consents. The rear garden is long but currently overgrown in places and will need ongoing maintenance to restore its former productivity. Overall, this is a practical opportunity for a first-time buyer or investor to secure a characterful home in a very affluent, low-crime area with fast broadband and good transport links to Bath and Bristol.
1 bedroom terraced house for sale in Tor Street, Wells, BA5 — £235,000 • 1 bed • 1 bath • 710 ft²
2 bedroom terraced house for sale in St. Thomas Street, Wells, BA5 — £335,000 • 2 bed • 1 bath • 764 ft²
3 bedroom end of terrace house for sale in North Road, Wells, BA5 — £345,000 • 3 bed • 1 bath • 953 ft²
3 bedroom house for sale in St. Cuthbert Street, Wells, BA5 — £395,000 • 3 bed • 2 bath • 1184 ft²
4 bedroom terraced house for sale in 19 Southover, Wells, Somerset, BA5 1UG, BA5 — £499,995 • 4 bed • 1 bath • 1272 ft²
3 bedroom terraced house for sale in Balch Road, Wells, BA5 — £275,000 • 3 bed • 1 bath • 904 ft²


















































