N1 0DS - 2 bedroom flat for sale in Carnoustie Drive, London, N1

View on Property Piper

2 bedroom flat for sale in Carnoustie Drive, London, N1

Summary - Carnoustie Drive, London, N1 N1 0DS

2 bed 1 bath Flat

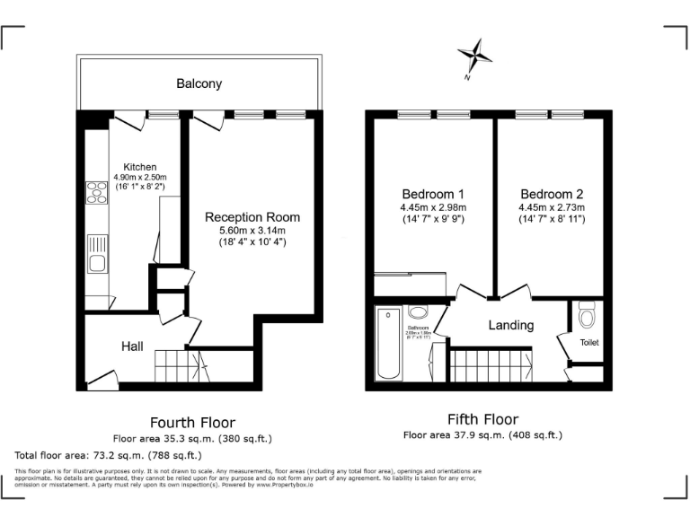
Well-lit two-bedroom split-level flat with south-facing balcony and large storage..
South-facing balcony accessed from reception and kitchen/diner
Split-level layout on fourth and fifth floors—stairs throughout
Large walk-in landing storage ideal for bikes or belongings
Long lease: 119 years; low ground rent: £10 per year
Service charge approx £3,228 per year (£269 pcm)
Area has above-average crime and high local deprivation
EPC B and mains gas central heating (boiler and radiators)
Cavity walls likely uninsulated—may need thermal upgrades
Bright, split-level two-bedroom flat arranged over the fourth and fifth floors, offering a comfortable first home or a city rental. The south-facing balcony and good natural light make the main living areas pleasant throughout the day, while the separate kitchen/diner gives functional space for cooking and dining.

Practical features include a large walk-in storage cupboard on the landing (useful for bikes) and additional communal storage. The long lease (119 years), low ground rent (£10 pa) and EPC B rating are solid ownership positives. Thornhill Square Gardens, Barnard Park and transport hubs including King’s Cross are within easy reach, making day-to-day life convenient.

Buyers should note the property sits in an area of higher-than-average crime and marked local deprivation; this may influence resale or rental dynamics. Annual service charges total about £3,228 (approx. £269 pcm), and the flat is accessed via upper floors—so the layout involves stairs and may not suit limited mobility. Cavity walls were built without insulation (assumed), so further insulation work could be needed to improve thermal performance and running costs.

Overall, this is a well-presented, practical two-bedroom flat with good transport access and outside space. It will suit first-time buyers wanting an adaptable city pied-à-terre or investors seeking reliable central-N1 rental potential, provided they factor in service charges and local area considerations.

Property Details

Image Descriptions

Floorplan Description

Rooms

Textual Property Features

Target Audience

AI Tags

Detected Visual Features

EPC Details

Nearby Schools

Nearest Bars And Restaurants

,,,,}

Nearest General Shops

,,}

Nearest Grocery shops

,,}

Nearest Supermarkets

,,}

Nearest Religious buildings

,,}

Nearest Medical buildings

,,,}

Nearest Airports

,}

Nearest Leisure Facilities

,,,,}

Nearest Tourist attractions

,,}

Nearest Train stations

,,,,}

Nearest Bus stations and stops

,,,,}

Nearest Hotels

,,}

Tags

Local Market Stats

AirBnB Data

Similar Properties

Meta

High Res Images

Compatible Images

Low res Images

Thumbnails

Raw Images

High Res Floorplan Images

Compatible Floorplan Images

Low res Floorplan Images

FloorplanImages Thumbnail

Raw Floorplan Images