Spacious five‑bed family home with large garden and direct park access.
Backs directly onto Golders Hill Park with gated access
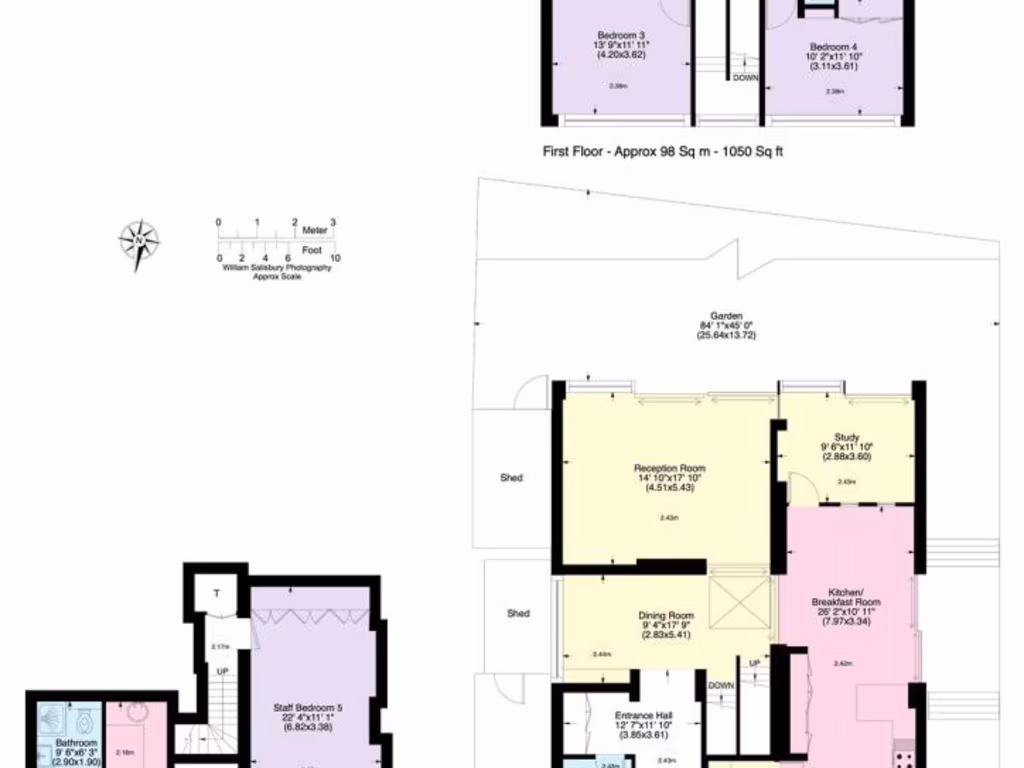
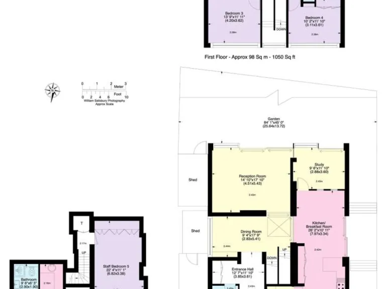
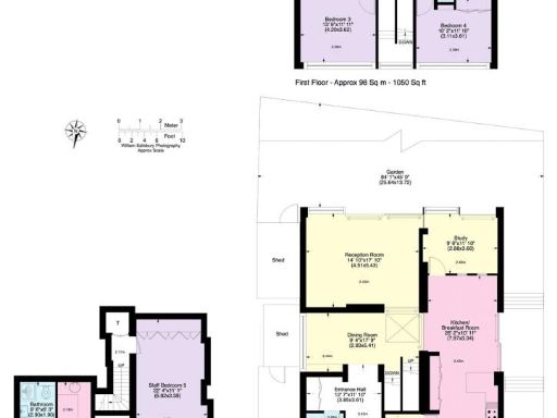
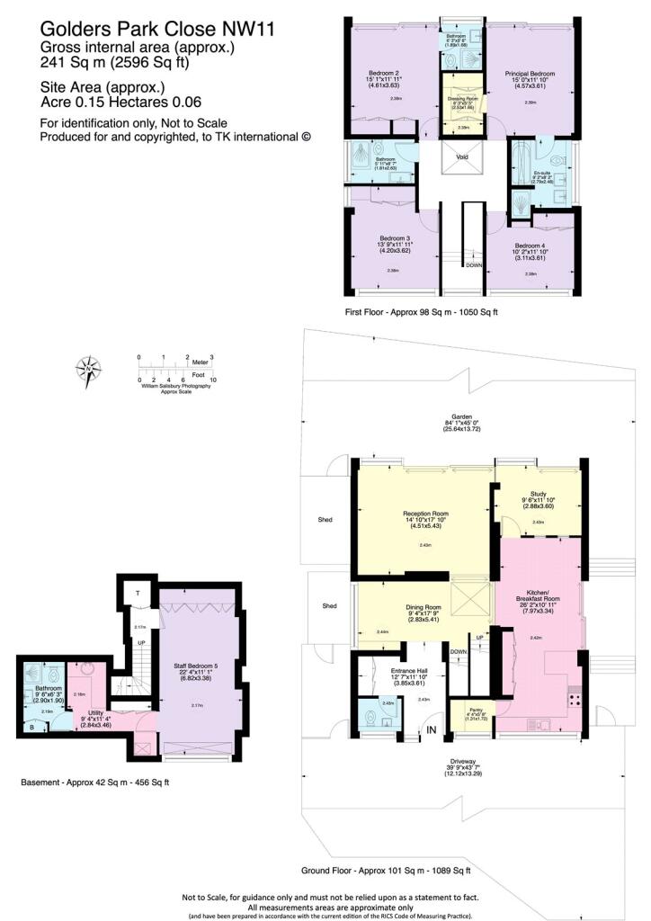
Set on a quiet cul‑de‑sac and backing directly onto Golders Hill Park, this contemporary five‑bedroom detached house offers generous family space and rare outdoor privacy in NW11. The house extends to about 2,596 sq ft and sits on a large plot with gated rear access into the park and off‑street parking for multiple cars — features that suit active families and those who value green space on the doorstep.
Internally the home is light and modern in feel, with double reception rooms, an open-plan dining/kitchen area, a cinema/gym and utility/guest cloakroom. Heating is by mains gas boiler with underfloor heating in parts, and the property benefits from double glazing. Nearby transport links (Golders Green Underground and frequent buses) and several highly regarded independent and state schools make this a convenient family location.
Notable positives include the 75‑foot lawned garden with park access, substantial parking and the generous overall footprint. However, there are practical issues to consider: the EPC is D and cavity walls were built without insulation (upgrade likely needed for comfort and efficiency). Council tax is described as very expensive. Also note an inconsistency in the listing: one data field records a single bathroom while the full description references three bath/shower rooms — this should be confirmed before purchase.
This property will appeal to families seeking space, parkside living and scope to improve energy performance. It also offers clear renovation potential for buyers wanting to add value or modernise heating and insulation to reduce running costs.
5 bedroom house for sale in Golders Park Close, Golders Hill Park, NW11 — £3,150,000 • 5 bed • 4 bath • 3000 ft²
5 bedroom house for sale in Mountview Close, Golders Hill Park, NW11 — £2,795,000 • 5 bed • 3 bath • 3176 ft²
5 bedroom detached house for sale in Mountview Close, London, NW11 — £2,750,000 • 5 bed • 3 bath • 3139 ft²
5 bedroom semi-detached house for sale in Mountview Close Hampstead Way Hampstead Garden Suburb NW11 — £2,750,000 • 5 bed • 3 bath • 3089 ft²
6 bedroom detached house for sale in Elm Walk, Hampstead, NW3 — £5,350,000 • 6 bed • 4 bath • 3898 ft²
3 bedroom semi-detached house for sale in North End Way, NW3 — £1,795,000 • 3 bed • 2 bath • 1608 ft²


















































































