Rare gated-family home by Golders Hill Park with gym and 24-hour security.
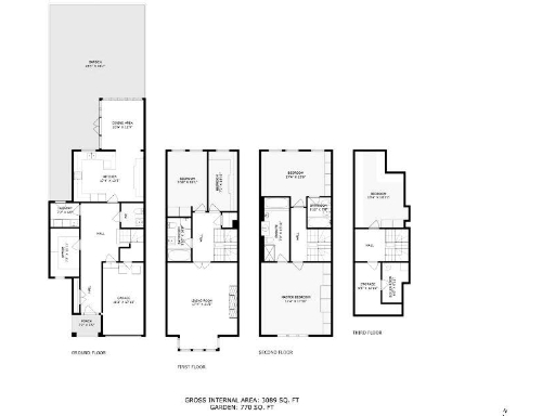
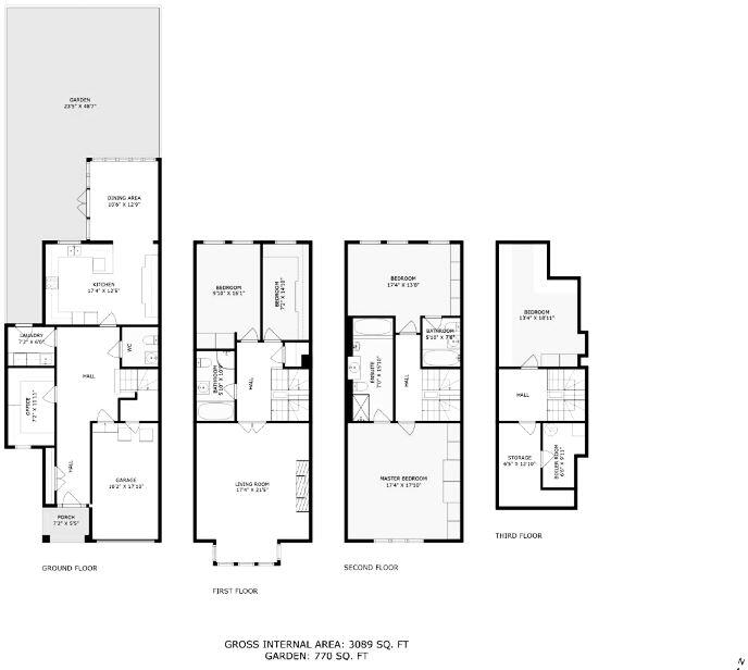
Approximately 3,089 sq ft over four floors
A rare, bright semi-detached townhouse in a gated development adjacent to Golders Hill Park, offering about 3,089 sq ft across four floors. The house delivers generous family living with a large kitchen/dining room flowing to a family area and secluded patio garden, an elegant reception room, five bedrooms (two with ensuite bathrooms) and a study. An integral garage and off-street parking for one car add practical convenience.
The development includes communal gardens, a gym and 24-hour security, which will suit buyers seeking privacy and leisure on site. The property was constructed around 1996–2002 and features double glazing (installation date unknown) with a mains gas boiler, radiators and underfloor heating in parts. Proximity to Hampstead Heath Extension, Golders Green shops and strong local schools is a major appeal for families.
Notable practical points: broadband speeds are reported as slow, and the tenure is not specified in the information provided — buyers should confirm tenure, service charges and any communal maintenance arrangements. Parking is limited to a single garage space; the house’s size and multi-storey layout may require ongoing upkeep and decorating. Overall, the house offers substantial, flexible family accommodation in a very affluent, well-connected location, with the trade-offs of potential communal costs and slower internet connectivity.
5 bedroom detached house for sale in Mountview Close, London, NW11 — £2,750,000 • 5 bed • 3 bath • 3139 ft²
5 bedroom house for sale in Mountview Close, Golders Hill Park, NW11 — £2,795,000 • 5 bed • 3 bath • 3176 ft²
5 bedroom house for sale in Mountview Close, London, NW11 — £2,750,000 • 5 bed • 3 bath • 3090 ft²
5 bedroom detached house for sale in Golders Park Close, London, NW11 — £3,150,000 • 5 bed • 1 bath • 2596 ft²
5 bedroom house for sale in Golders Park Close, Golders Hill Park, NW11 — £3,150,000 • 5 bed • 4 bath • 3000 ft²
3 bedroom semi-detached house for sale in North End Way, NW3 — £1,795,000 • 3 bed • 2 bath • 1608 ft²






































































