Open-plan living, en suite and driveway parking — ideal for growing households.
£10,000 deposit contribution included for buyers
Upgraded kitchen package worth £2,579 fitted
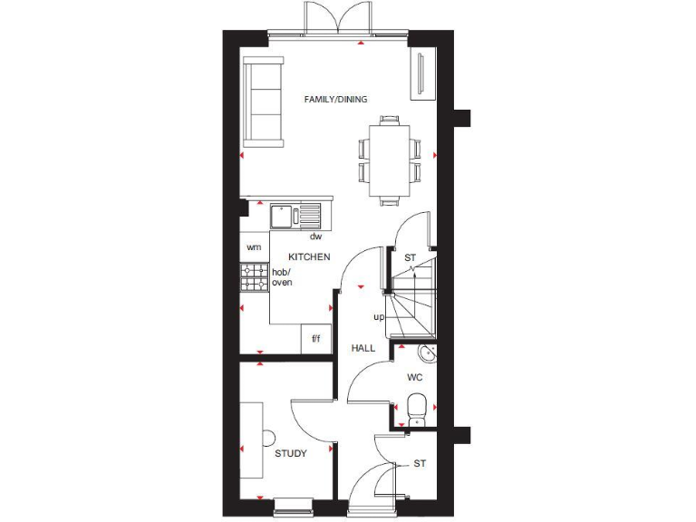
Open-plan dining kitchen with French doors to garden
Main bedroom with en suite; two further double bedrooms
Compact overall size — about 759 sq ft (modest rooms)
Two off-street parking spaces on driveway
Slow broadband speeds reported locally
Local area records very high crime levels
This newly built three-bedroom end-of-terrace offers flexible family living across three floors, arranged around an open-plan dining kitchen with French doors to a modest rear garden. The ground floor includes a handy study/office, cloakroom and storage; the first-floor lounge and main bedroom with en suite add everyday convenience. Two further double bedrooms sit on the top floor alongside the family bathroom.
Practical extras include two off-street parking spaces, an upgraded kitchen package and a £10,000 contribution toward a deposit — useful for first-time buyers or mortgage staging. The home is compact (circa 759 sq ft) so it suits families wanting modern, low-maintenance living rather than large, sprawling rooms.
Buyers should weigh a few clear limitations: broadband speeds are reported slow and local crime levels are very high. Tenure is not specified, and the garden and internal space are modest compared with larger family homes, so this property is best for buyers prioritising new construction finish, commuter access and nearby good schools over expansive accommodation.
Set in Witham St Hughs, the development balances semi-rural calm with straightforward road links to Lincoln and Newark and access to well-rated local schools. Overall this is a practical, contemporary option for growing households seeking a low-maintenance new build with financial incentives and parking included.
3 bedroom end of terrace house for sale in Off Camp Road
Witham
St Hughs
Lincoln
Lincolnshire
LN6 9XN, LN6 — £302,995 • 3 bed • 1 bath • 759 ft²
3 bedroom end of terrace house for sale in Off Camp Road
Witham
St Hughs
Lincoln
Lincolnshire
LN6 9XN, LN6 — £269,995 • 3 bed • 1 bath • 759 ft²
3 bedroom end of terrace house for sale in Off Camp Road
Witham
St Hughs
Lincoln
Lincolnshire
LN6 9XN, LN6 — £279,995 • 3 bed • 1 bath • 759 ft²
3 bedroom end of terrace house for sale in Off Camp Road
Witham
St Hughs
Lincoln
Lincolnshire
LN6 9XN, LN6 — £284,995 • 3 bed • 1 bath • 760 ft²
3 bedroom end of terrace house for sale in Off Camp Road
Witham
St Hughs
Lincoln
Lincolnshire
LN6 9XN, LN6 — £259,995 • 3 bed • 1 bath • 760 ft²
3 bedroom end of terrace house for sale in Off Camp Road
Witham
St Hughs
Lincoln
Lincolnshire
LN6 9XN, LN6 — £289,995 • 3 bed • 1 bath • 827 ft²










































































