Move in ready with deposit support and upgraded fittings included.
3 double bedrooms including main with en suite and family bathroom upstairs|Open-plan dining kitchen with French doors to rear garden|Downstairs study and cloakroom—good home-work flexibility|Two off-street parking spaces included|Ready to move in with flooring, blinds, lights and curtains included|£10,000 toward deposit plus upgraded kitchen package on reservation|Small overall footprint (~759 sq ft); compact rooms and storage|Area reports very high crime—check local security and insurance
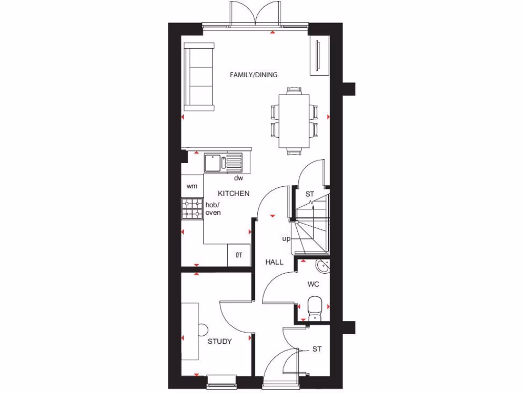
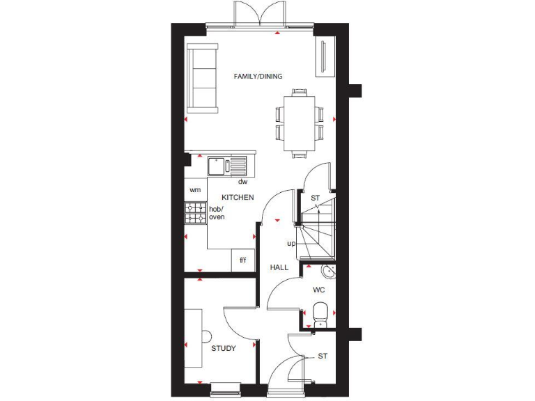
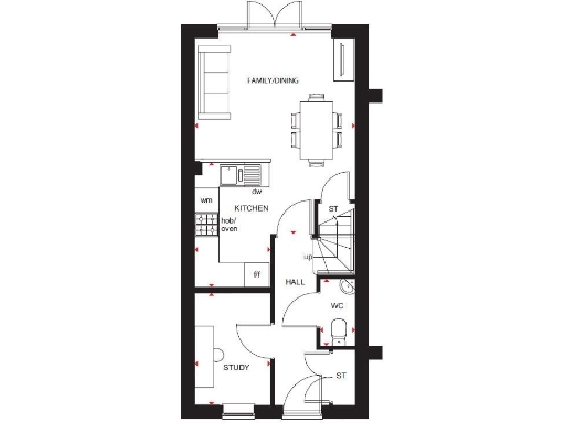
This three-bedroom end-of-terrace new build on Orchid Way offers practical family living across three floors. The ground floor has an open-plan dining kitchen with French doors to the garden, a handy cloakroom, storage and a dedicated study — useful for working from home. The main bedroom on the first floor includes an en suite, with two further double bedrooms and a family bathroom on the top floor.
The home is offered ready to move into and includes a £10,000 contribution toward your deposit plus fitted flooring, an upgraded kitchen package and curtains, lights and blinds when reserved — a tangible saving on initial moving costs. Two off-street parking spaces and a modest rear garden complete the practical layout for everyday family life.
Buyers should note the property is small overall (approximately 759 sq ft) and sits in an area with a reported very high crime level; purchasers may wish to investigate local security measures and insurance implications. Tenure is not specified, so confirm this before exchange.
Set in The Meadows at Witham St Hughes, the development balances rural scenery with good road links to Lincoln and Newark and benefits from nearby outstanding and good-rated primary schools. The house suits a family or first-time buyer seeking a low-maintenance, contemporary home with included fittings and deposit support.
3 bedroom end of terrace house for sale in Off Camp Road
Witham
St Hughs
Lincoln
Lincolnshire
LN6 9XN, LN6 — £259,995 • 3 bed • 1 bath • 760 ft²
3 bedroom end of terrace house for sale in Off Camp Road
Witham
St Hughs
Lincoln
Lincolnshire
LN6 9XN, LN6 — £301,995 • 3 bed • 1 bath • 761 ft²
3 bedroom end of terrace house for sale in Off Camp Road
Witham
St Hughs
Lincoln
Lincolnshire
LN6 9XN, LN6 — £289,995 • 3 bed • 1 bath • 761 ft²
3 bedroom end of terrace house for sale in Off Camp Road
Witham
St Hughs
Lincoln
Lincolnshire
LN6 9XN, LN6 — £259,995 • 3 bed • 1 bath • 760 ft²
4 bedroom detached house for sale in Off Camp Road
Witham
St Hughs
Lincoln
Lincolnshire
LN6 9XN, LN6 — £371,995 • 4 bed • 1 bath • 1062 ft²
3 bedroom end of terrace house for sale in Off Camp Road
Witham
St Hughs
Lincoln
Lincolnshire
LN6 9XN, LN6 — £302,995 • 3 bed • 1 bath • 761 ft²


















































































