Move in with £10,000 contribution and a stylish upgraded kitchen package included.
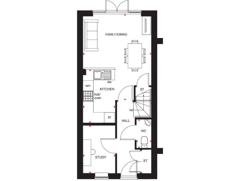
Open-plan dining kitchen with upgraded kitchen package included
Main bedroom with en suite; two further double bedrooms
Ground-floor study/home office and cloakroom for flexible use
Two off-street parking spaces; private rear garden
Compact overall size — 759 sq ft across three floors
New-build, energy-efficient construction and double glazing
Tenure not specified; buyers should verify ownership details
Area records very high crime levels; weigh with local benefits
This three-bedroom end-of-terrace presents a compact, flexible layout across three floors with practical modern finishes. The open-plan dining kitchen with French doors opens to a private garden; an included upgraded kitchen package adds immediate style and convenience. Two off-street parking spaces and fast broadband suit commuters and remote workers.
Accommodation is arranged for adaptable living: a ground-floor study/home office and cloakroom, a main bedroom with en suite on the first floor alongside the lounge, and two double bedrooms with a family bathroom on the top floor. At 759 sq ft the house is small but well-zoned for a family or professionals seeking a low-maintenance new build.
Financial incentives are notable: a £10,000 purchaser contribution can be used toward deposit, moving costs or mortgage support. Practical positives include energy-efficient new-build construction, double glazing, and no local flood risk. Important facts: tenure is not stated and the area records very high crime levels, which buyers should consider alongside the property’s other strengths.
Located between Lincoln and Newark, the development benefits from excellent primary schools nearby, rapid routes for commuting, and a mix of rural scenery with city amenities. This plot will suit buyers prioritising move-in-ready finishes, a spare room for work-from-home needs, and the convenience of drive-in parking.
3 bedroom end of terrace house for sale in Off Camp Road
Witham
St Hughs
Lincoln
Lincolnshire
LN6 9XN, LN6 — £301,995 • 3 bed • 1 bath • 761 ft²
3 bedroom end of terrace house for sale in Off Camp Road
Witham
St Hughs
Lincoln
Lincolnshire
LN6 9XN, LN6 — £259,995 • 3 bed • 1 bath • 760 ft²
3 bedroom end of terrace house for sale in Off Camp Road
Witham
St Hughs
Lincoln
Lincolnshire
LN6 9XN, LN6 — £269,995 • 3 bed • 1 bath • 759 ft²
3 bedroom end of terrace house for sale in Off Camp Road
Witham
St Hughs
Lincoln
Lincolnshire
LN6 9XN, LN6 — £289,995 • 3 bed • 1 bath • 761 ft²
3 bedroom end of terrace house for sale in Off Camp Road
Witham
St Hughs
Lincoln
Lincolnshire
LN6 9XN, LN6 — £259,995 • 3 bed • 1 bath • 760 ft²
3 bedroom end of terrace house for sale in Off Camp Road
Witham
St Hughs
Lincoln
Lincolnshire
LN6 9XN, LN6 — £304,995 • 3 bed • 1 bath • 827 ft²


























































































