DL6 2FQ - 3 bed spacious threestorey home in Richmond (Yorks), DL6 2FQ

View on Property Piper

3 bedroom terraced house for sale in Darlington Road, Northallerton, North Yorkshire, DL6 2FQ, DL6

Summary - Darlington Road, Northallerton, North Yorkshire, DL6 2FQ DL6 2FQ

3 bed 1 bath Terraced

Contemporary three-bed terrace with large top-floor bedroom and off-street parking.
Three-storey layout with 1,299 sq ft of living space
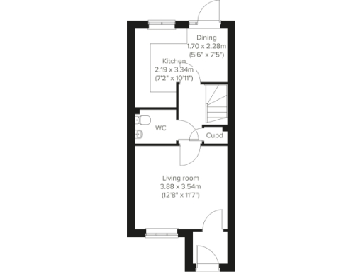
This three-storey, three-bedroom terraced home on Darlington Road offers generous internal space across 1,299 sq ft and contemporary new-build finishes. The living room faces the front; a kitchen/diner opens to the outside and a convenient downstairs WC helps family life run smoothly. The top-floor bedroom is notably large with a dress area — ideal as a principal bedroom, teenage retreat or combined bedroom and snug.

Practical features include off-street parking, three useful storage cupboards, energy-efficient construction and fast broadband with excellent mobile signal. The property sits in a rural-traits area with agricultural surroundings while being part of a small settlement; there is no flood risk and tenure is freehold.

Considerations: there is a single family bathroom only and the plot is small, so outdoor space is limited. Local recorded crime is above average, and council tax banding will be set after occupation. Overall, this is a modern, efficiently built family home suited to buyers seeking flexible three-storey accommodation in a quieter, semi-rural setting.

Property Details

Image Descriptions

Floorplan Description

Rooms

Textual Property Features

Target Audience

AI Tags

Detected Visual Features

Nearby Schools

Nearest Bars And Restaurants

,,,,}

Nearest General Shops

,,}

Nearest Grocery shops

,,}

Nearest Supermarkets

,,}

Nearest Religious buildings

,,}

Nearest Medical buildings

,,,}

Nearest Leisure Facilities

,,,,}

Nearest Tourist attractions

,,}

Nearest Train stations

,,,,}

Nearest Bus stations and stops

,,,,}

Nearest Hotels

,,}

Tags

Local Market Stats

AirBnB Data

Similar Properties

Meta

High Res Images

Compatible Images

Low res Images

Thumbnails

Raw Images

High Res Floorplan Images

Compatible Floorplan Images

Low res Floorplan Images

FloorplanImages Thumbnail

Raw Floorplan Images