**Standout Features:**
- Grade II listed property with historical significance
- Spacious layout: 2,310 sq ft with potential for customization
- Proposed 3 bedrooms, 2 bathrooms with en-suite
- Beautiful private and communal gardens
- Idyllic village location with access to amenities
- Full planning consent for conversion and renovation
- Chain-free and freehold ownership
**Concerns:**
- Requires extensive renovation and reconfiguration
- Listed status may pose challenges during renovations
- Slow broadband and limited mobile signal
- The area is classified as deprived
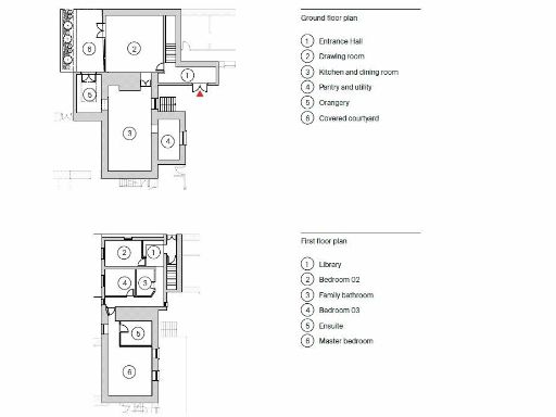
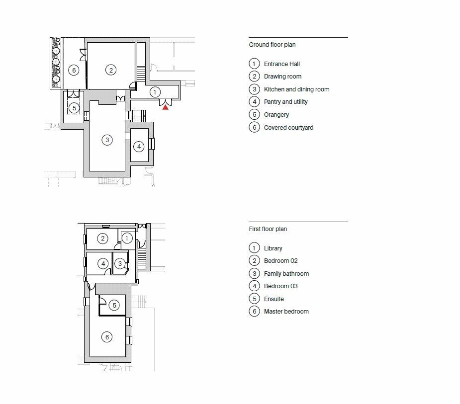
Discover a rare opportunity to transform this Grade II listed Georgian gem, Hammet House, nestled on the edge of the picturesque village of Llechryd in West Wales. With a grand total of 2,310 sq ft, this property offers a canvas for your creativity, featuring a proposed layout that includes an entrance hall, drawing room, kitchen diner, orangery, three bedrooms (one en suite), a family bathroom, and a library over two levels.
While extensive renovation is needed, this is a chance to reclaim the historic elegance of the house, complete with private and communal gardens creating a serene outdoor oasis. Situated in an idyllic location, you can enjoy the peaceful countryside while remaining conveniently close to local amenities such as shops and pubs. Additionally, with planning consent already in place for conversion into residential units, the prospect for future value is surely enticing.
Despite the renovation needs and slower broadband in the area, this property’s unique character and potential for modernization make it an appealing option for first-time buyers or investors eager to craft a distinctive home. Don't miss this chance to own a piece of history – opportunity like this doesn’t last long!
6 bedroom terraced house for sale in Castell Malgwyn, Llechryd, Cardigan, Pembrokeshire, SA43 — £495,000 • 6 bed • 5 bath • 4890 ft²
7 bedroom detached house for sale in Cardigan, Ceredigion, SA43 — £1,500,000 • 7 bed • 4 bath • 8938 ft²
Commercial development for sale in Pentre Farm, Newchapel, Boncath, SA37 0ET, SA37 — £1,200,000 • 1 bed • 1 bath
5 bedroom detached house for sale in Cilrhedyn, Nr Newcastle Emlyn, Pembrokeshire, SA35 — £1,100,000 • 5 bed • 3 bath • 2759 ft²
Detached house for sale in Pentre Farm, Newchapel, Boncath, SA37 0ET, SA37 — £1,200,000 • 1 bed • 1 bath
6 bedroom detached house for sale in Blaen-Cil-Llech, Newcastle Emlyn, Ceredigion, SA38 — £1,350,000 • 6 bed • 5 bath • 4772 ft²






























































