**Standout Features:**
- Grade II listed property originally built in 1795
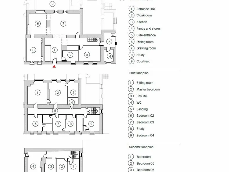
- Generous space with approximately 4,890 sq ft over three floors
- Six spacious bedrooms, all en suite
- Historical charm with period features and high ceilings
- Proposed layout allows for stunning renovation opportunities
- Private and communal gardens with scenic surroundings
**Concerns:**
- Requires comprehensive renovations and fit-out
- Listed status complicates structural changes
- Slow broadband and limited mobile reception
Discover the potential of **Castle House**, a remarkable Grade II listed country home set in the picturesque village of Llechryd, West Wales. Encompassing a vast 4,890 sq ft, this property offers an extraordinary opportunity for customization and modernization, featuring a proposed design that includes three reception rooms, a spacious kitchen, six en suite bedrooms, and a delightful studio. The expansive grounds boast private and shared gardens, providing serene outdoor space to enjoy.
While the home stands in need of significant renovations, its historical architecture and generous room sizes present a blank canvas for those with a vision. The charm of this property lies in its potential—imagine transforming this classic residence into your dream home, complete with original features and high ceilings that echo its rich past. Located near essential amenities, with beautiful landscapes and amenities like the Teifi River and Ceredigion Heritage Coastline nearby, this home promises both comfort and a lifestyle steeped in natural beauty and history.
With the planning permissions already in place for transformation, seize this unique chance before it’s gone!
3 bedroom terraced house for sale in Castell Malgwyn, Llechryd, Cardigan, Pembrokeshire, SA43 — £295,000 • 3 bed • 2 bath • 2310 ft²
8 bedroom detached house for sale in Llawhaden, Narberth, Pembrokeshire, SA67 — £750,000 • 8 bed • 6 bath
7 bedroom detached house for sale in Boncath, Near Newcastle Emlyn, Pembrokeshire, SA37 — £1,500,000 • 7 bed • 8 bath • 7374 ft²
7 bedroom detached house for sale in Cardigan, Ceredigion, SA43 — £1,500,000 • 7 bed • 4 bath • 8938 ft²
6 bedroom detached house for sale in Llangunnor Road, Llangunnor, Carmarthen, Carmarthenshire, SA31 — £1,150,000 • 6 bed • 4 bath • 8796 ft²
4 bedroom country house for sale in Bango Teifi, Llandysul, Ceredigion, SA44 5BH, SA44 — £275,000 • 4 bed • 1 bath • 1321 ft²


































































































































