Village setting with large garden and renovation potential for value seekers.
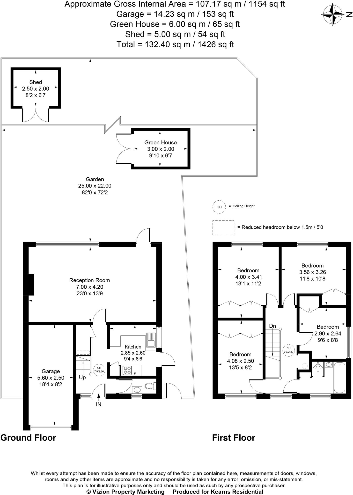
Chain free four-bedroom detached house, freehold
Large, private rear garden with mature planting and potential
Single garage plus driveway parking for two vehicles
Requires internal modernisation throughout; renovation needed
Four-piece family bathroom only; one bath/shower serving house
Double glazing fitted before 2002; walls likely uninsulated cavity
Fast broadband and excellent mobile signal for home working
Council tax level described as expensive; area shows deprivation
Set on a quiet road in Harefield, this four-bedroom detached house offers generous living space and a large, private rear garden — ideal for a family seeking outdoor space and potential to extend (subject to planning). The ground floor features a spacious living/dining room and a practical kitchen with side access to the garden; upstairs are three double bedrooms, one single room and a sizeable four-piece bathroom. The property is chain free and freehold, simplifying purchase.
The house is structurally straightforward and benefits from features such as a single garage, driveway parking for two cars and double glazing (installed before 2002). Broadband speeds are fast and mobile signal is excellent, supporting modern home working. The location is village-centred: under a 10-minute walk to Harefield High Street, nearby primary and secondary schools rated Good, and reasonable driving access to Denham, Northwood and Ruislip stations.
Important to note: the interior requires modernisation and some updating to bring fittings, heating controls and finishes up to current standards. Walls are cavity with assumed no added insulation, and while the property presents good kerb appeal, there is visible overgrown planting in the garden that will need attention. Council tax is described as expensive and the wider area shows local deprivation metrics; prospective buyers should factor renovation costs and local running costs into their budget.
For a growing household, the combination of a large garden, garage and flexible living space presents clear scope to personalise and increase value. Buyers seeking a straightforward renovation project in a peaceful village fringe setting will find this home particularly appealing.
4 bedroom detached house for sale in Northwood Road, Harefield, Uxbridge, UB9 — £600,000 • 4 bed • 2 bath • 1119 ft²
4 bedroom semi-detached house for sale in Church Hill, Harefield, Uxbridge, UB9 — £750,000 • 4 bed • 2 bath • 1846 ft²
4 bedroom detached bungalow for sale in Church Hill, Harefield, UB9 — £650,000 • 4 bed • 3 bath • 1073 ft²
4 bedroom detached house for sale in Northwood Road, Harefield, Uxbridge, UB9 — £750,000 • 4 bed • 2 bath • 1819 ft²
4 bedroom end of terrace house for sale in Hinkley Close, Harefield, UB9 — £475,000 • 4 bed • 2 bath • 1235 ft²
3 bedroom detached house for sale in Church Hill, Harefield, Uxbridge, UB9 — £775,000 • 3 bed • 1 bath • 1295 ft²






































































