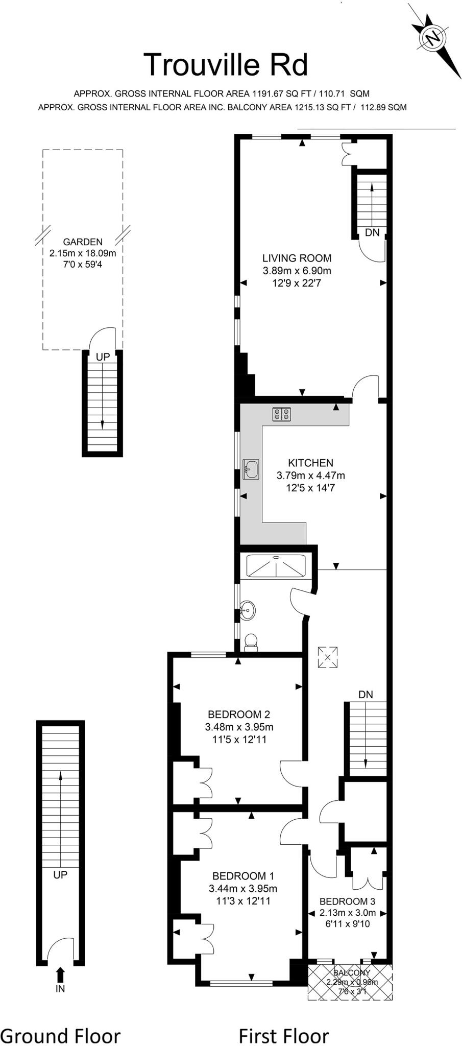
Spacious period home near Clapham Common and Underground.
1,191 sq ft three-bedroom first-floor maisonette
Chain free with private rear garden and front balcony
Loft included with potential to extend (STPP)
High ceilings and period bay windowed façade
Two double bedrooms with fitted storage
Solid brick walls likely lack insulation — upgrade likely
Single bathroom only; may not suit larger families
Council tax above average for the area
A bright three-bedroom first-floor maisonette on a popular tree-lined road in Clapham, offered chain free and ready to move into. The 1,191 sq ft layout benefits from high ceilings, an open-plan living area to the rear and a modern, large kitchen that flows to the lounge. Two generous double bedrooms have fitted storage; the third bedroom works well as a study or guest room.
Practical features include a private rear garden accessed via steps down, a small front balcony, double glazing and mains gas central heating with boiler and radiators. The loft is included in the sale and offers scope to extend subject to planning permission (STPP), providing clear potential to add space or value. The property sits within easy walking distance of Clapham South Underground, Clapham Common and the shops and cafés on Abbeville Road.
Buyers should note the building date (c.1900–1929) and solid brick walls likely have no built-in insulation, so upgrading thermal performance may be needed. The property is in good order overall but the single bathroom, solid-wall construction and modest garden size reflect typical Victorian/Edwardian terraced proportions. Council tax is above average for the area.
This maisonette will suit buyers seeking a spacious period home in an inner-city, cosmopolitan area — ideal for families who want proximity to parks and transport, or owners looking to add value through a loft conversion and targeted upgrades.
 3 bedroom maisonette for sale in Park Hill, Clapham, SW4 — £999,950 • 3 bed • 1 bath • 1095 ft²
 3 bedroom maisonette for sale in Park Hill, Clapham, SW4 — £999,950 • 3 bed • 1 bath • 1095 ft² 4 bedroom terraced house for sale in Shandon Road, London, SW4 — £1,900,000 • 4 bed • 3 bath • 2170 ft²
 4 bedroom terraced house for sale in Shandon Road, London, SW4 — £1,900,000 • 4 bed • 3 bath • 2170 ft² 2 bedroom maisonette for sale in Hambalt Road, Clapham, SW4 — £850,000 • 2 bed • 2 bath • 1022 ft²
 2 bedroom maisonette for sale in Hambalt Road, Clapham, SW4 — £850,000 • 2 bed • 2 bath • 1022 ft² 2 bedroom maisonette for sale in Bennerley Road, London, SW11 — £675,000 • 2 bed • 1 bath • 665 ft²
 2 bedroom maisonette for sale in Bennerley Road, London, SW11 — £675,000 • 2 bed • 1 bath • 665 ft² 3 bedroom apartment for sale in Swaby Road, SW18 — £799,000 • 3 bed • 1 bath • 980 ft²
 3 bedroom apartment for sale in Swaby Road, SW18 — £799,000 • 3 bed • 1 bath • 980 ft² 2 bedroom flat for sale in Rudloe Road, Clapham South, SW12 — £900,000 • 2 bed • 1 bath • 1032 ft²
 2 bedroom flat for sale in Rudloe Road, Clapham South, SW12 — £900,000 • 2 bed • 1 bath • 1032 ft²














































