Compact two-bedroom flat ideal for first-time buyers or buy-to-let investors.
Top-floor two-bedroom flat with small private balcony
Open-plan kitchen/living/dining — bright city-centre outlook
Gas central heating and double glazing; EPC C, Council Tax band B
Shared off-street parking — not a private space
Modest total size (~602 sq ft); rooms are compact
No private garden; communal stair access only
Located in Elgin town centre — excellent local amenities
Wider area shows high deprivation — may affect long-term growth
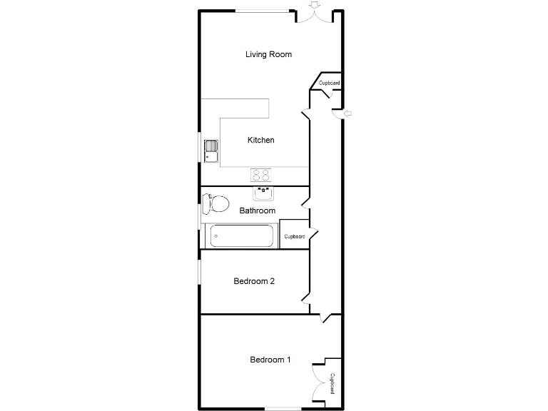
Set on the top floor of a modern low‑rise block, this compact two-bedroom flat places you steps from Elgin High Street. The open-plan living, dining and kitchen area opens onto a small private balcony, bringing light and a city-centre outlook. Gas central heating and double glazing keep running costs reasonable; EPC C and Council Tax band B are practical positives for everyday budgets.
Rooms are modest but well arranged, with two bedrooms (one with built-in storage) and a bathroom off a small entrance hall with two storage cupboards. The property is in good condition throughout and ready to move into, making it suitable for a first-time buyer or investor seeking a straightforward, central flat with rental potential.
There are some constraints to note: the flat is relatively small (about 602 sq ft) and has no private garden. Parking is off-street in a shared communal area rather than a private space, and access is by a communal stairwell to the top floor. The wider neighbourhood is economically challenged, which may affect long‑term capital growth and tenant demand in some market conditions.
Overall this is a practical, low‑maintenance city‑centre flat that offers immediate occupancy or lettings potential. A viewing will best convey the bright open-plan living space and balcony outlook.
2 bedroom flat for sale in Moravia Apartments, Elgin, IV30 6LN, IV30 — £120,000 • 2 bed • 1 bath
1 bedroom flat for sale in Commerce Street, Elgin, IV30 — £69,995 • 1 bed • 1 bath • 441 ft²
2 bedroom flat for sale in North Port, Elgin, IV30 1EH, IV30 — £72,000 • 2 bed • 1 bath
2 bedroom flat for sale in High Street, Elgin, IV30 — £90,000 • 2 bed • 1 bath • 775 ft²
2 bedroom flat for sale in Dornoch Links, Elgin, Moray, IV30 — £239,500 • 2 bed • 2 bath • 882 ft²
2 bedroom apartment for sale in Friars Park, Institution Road, Elgin, IV30 1QU, IV30 — £195,000 • 2 bed • 2 bath • 1018 ft²


















































