Rare, wide period family house with garden and garage in the Crabtree conservation pocket..
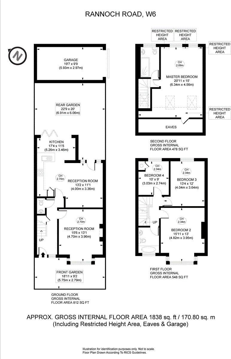
Larger and wider than average end‑of‑terrace period house (1,838 sq ft)
Four generous bedrooms plus two bathrooms and a cloakroom/WC
Private rear garden with paved terrace and low‑maintenance lawn
Garage suitable for a car, workshop or studio use
Crabtree Conservation Area; short walk to Thames towpath and restaurants
Solid brick walls likely uninsulated; retrofit insulation may be needed
Double glazing installed before 2002; some window upgrades possible
Council Tax Band F — higher ongoing local tax liability
This larger‑than‑average end‑of‑terrace period house extends to approximately 1,838 sq ft across three floors, offering four bedrooms, two bathrooms plus a ground‑floor cloakroom. High ceilings, wooden floors and bay windows retain period character; plantation shutters and bi‑fold doors enhance natural light and ground‑floor flow to the private garden. A garage adds valuable storage or studio/car opportunity.
Located in the sought‑after Crabtree Conservation Area, the house sits a short walk from the Thames towpath, River Café, Sam’s Brasserie and The Crabtree pub, with Riverside Studios, shops and restaurants close by. The freehold, chain‑free status simplifies a move and will appeal to families seeking space within easy reach of local schools and transport links.
The property offers clear potential to modernise and extend (subject to consents) but requires pragmatic budgeting: the solid brick walls likely lack cavity insulation, glazing is double‑glazed but pre‑2002, and the home dates from the 1930s so some systems and finishes may need updating. Council Tax Band F reflects higher ongoing costs.
For families or buyers who prioritise generous, characterful accommodation in a prime riverside pocket, this is a rare, spacious example of its type. Early viewing is recommended to assess scope for improvement and to confirm any structural or retrofit priorities.
4 bedroom terraced house for sale in Rannoch Road, London, W6 — £1,350,000 • 4 bed • 2 bath • 1743 ft²
4 bedroom house for sale in Rannoch Road, Hammersmith, London, W6 — £1,525,000 • 4 bed • 2 bath • 1678 ft²
4 bedroom terraced house for sale in Rannoch Road, London, W6 — £1,575,000 • 4 bed • 3 bath • 1562 ft²
5 bedroom terraced house for sale in Larnach Road, Hammersmith, London, W6 — £1,300,000 • 5 bed • 2 bath • 1507 ft²
4 bedroom house for sale in Ellaline Road, Hammersmith, London, W6 — £1,650,000 • 4 bed • 3 bath • 1850 ft²
3 bedroom apartment for sale in Colwith Road, Hammersmith, Hammersmith, London, W6 — £700,000 • 3 bed • 1 bath • 852 ft²














































































