Spacious extended terrace with large garden close to stations and riverside walks.
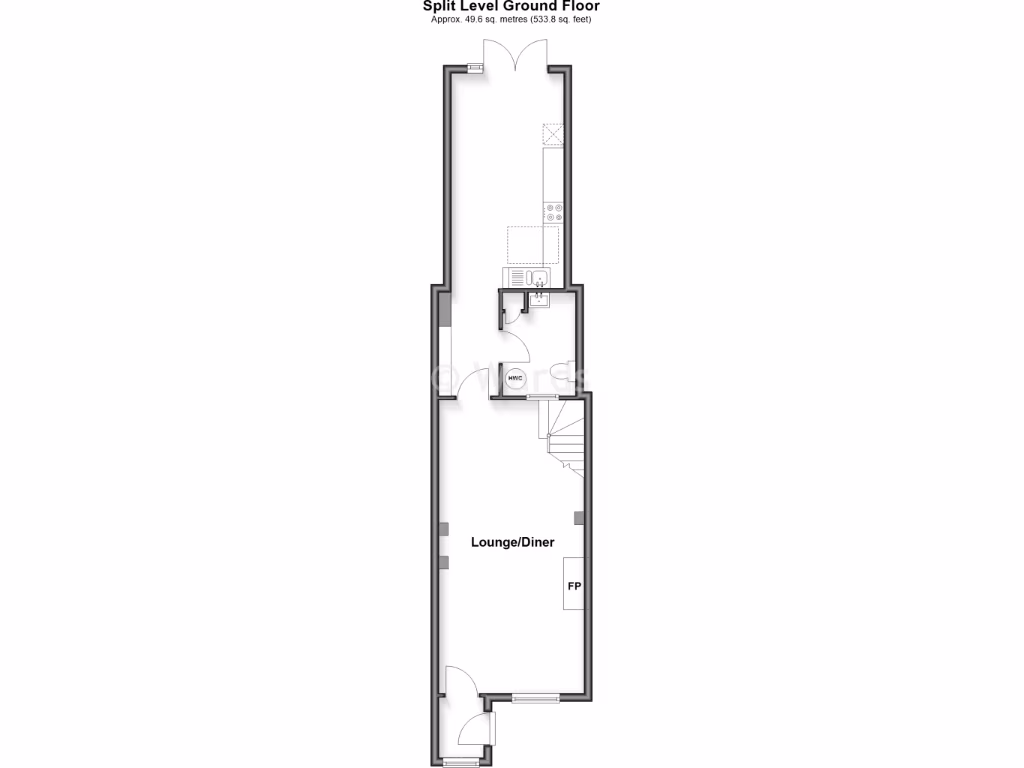
- Extended ground floor creates large lounge/diner and better entertaining space
- Large rear garden and patio, good outdoor potential but needs maintenance
- Two double bedrooms, upstairs shower room plus downstairs cloakroom
- Short drive to Rochester and Halling stations, countryside and riverside walks nearby
- LPG boiler and radiators (individual LPG supply, not mains gas)
- Very slow broadband speeds in the area
- Early 20th-century build; cavity walls assumed uninsulated, may need upgrades
- Freehold tenure; council tax described as affordable
A well-presented two-bedroom terraced cottage offering countryside living with easy access to Rochester and Halling stations. The ground-floor extension creates a generous lounge/diner and sociable kitchen, ideal for everyday life and entertaining. The property sits on a decent plot with a large rear garden and patio.
Practical features include an upstairs shower room, a downstairs cloakroom, double glazing and LPG boiler with radiator heating. The house dates from the early 20th century and retains period character while presenting as ready to move into for buyers who value rural surroundings with town links.
Notable practical points: broadband speeds in the area are very slow and the property uses LPG (individual supply) rather than mains gas. External areas will benefit from garden maintenance, and cavity walls are assumed to have no insulation, which could affect running costs. Any purchaser should verify planning/building regulation consents for the ground-floor extension and confirm tenure and services.
2 bedroom terraced house for sale in Castle Street, Wouldham, ME1 — £250,000 • 2 bed • 1 bath • 313 ft²
2 bedroom terraced house for sale in Chelmsford Road, Rochester, Kent, ME2 — £270,000 • 2 bed • 1 bath • 711 ft²
3 bedroom terraced house for sale in Kent Road, Halling, Rochester, Kent, ME2 — £270,000 • 3 bed • 1 bath • 580 ft²
2 bedroom terraced house for sale in High Street, Halling, Rochester, ME2 — £315,000 • 2 bed • 1 bath • 790 ft²
2 bedroom terraced house for sale in Chillington Close, Upper Halling, Rochester, Kent, ME2 — £280,000 • 2 bed • 1 bath • 614 ft²
2 bedroom terraced house for sale in Tutsham Farm, West Farleigh, Maidstone, Kent, ME15 — £500,000 • 2 bed • 2 bath • 868 ft²














































