Affordable village home with off-street parking and garden close to trains.
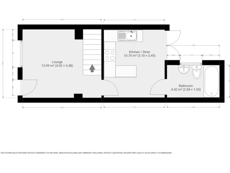
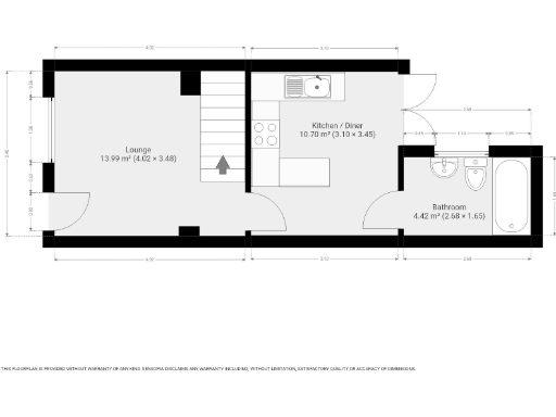
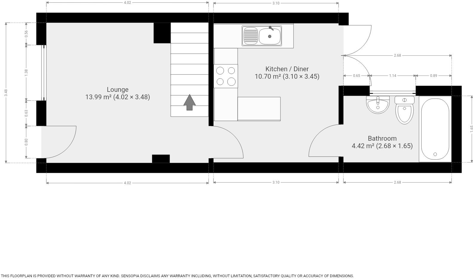
- Compact terraced Victorian home, approx. 313 sq ft
- Two bedrooms, practical internal layout with walk-in wardrobe
- Modern fitted kitchen with French doors to rear garden
- Off-street parking and small rear garden with decking
- All-electric heating system (no gas) — running costs may be higher
- Medium flooding risk — check flood reports and insurance costs
- Slow broadband speeds despite excellent mobile signal
- Freehold tenure; Council Tax Band B (relatively low)
A compact two-bedroom Victorian terrace set in the peaceful riverside village of Wouldham, offered freehold. The house maximises its small footprint with a practical layout: lounge, modern fitted kitchen with French doors to the rear, bathroom and two bedrooms. Garden, off-street parking and a partly boarded loft add useful storage for a property of this size.
This home suits a first-time buyer seeking a village feel with easy access to local amenities and transport. Halling and Snodland stations are within walking distance, and good primary and highly rated selective secondary schools are close by. The village offers riverside and country walks, pubs and basic local shops for everyday life.
Be clear about the constraints: the overall internal area is small (approximately 313 sq ft) and broadband speeds are slow. Heating is all-electric, which can be more expensive than gas in some seasons. There is a medium flooding risk for the area — buyers should obtain up-to-date flood advice and insurance quotes. Despite these limits, the property’s character features, off-road parking and low council tax band make it an affordable, low-maintenance entry point to homeownership.
2 bedroom terraced house for sale in High Street, Wouldham, ME1 — £275,000 • 2 bed • 1 bath • 657 ft²
2 bedroom terraced house for sale in Boulton View, Wouldham, Rochester, Kent, ME1 — £325,000 • 2 bed • 1 bath • 673 ft²
2 bedroom terraced house for sale in High Street, Wouldham, Rochester, ME1 — £280,000 • 2 bed • 1 bath • 770 ft²
2 bedroom terraced house for sale in Lodge Hill Lane, Rochester, ME3 — £290,000 • 2 bed • 1 bath • 732 ft²
2 bedroom terraced house for sale in Kent Road, Halling, Rochester, Kent, ME2 — £230,000 • 2 bed • 1 bath • 732 ft²
2 bedroom semi-detached house for sale in Orchid Road, Wouldham, Rochester, Kent, ME1 — £345,000 • 2 bed • 1 bath • 609 ft²










































































